allkauf haus

Frau Lucy Kil

Individuelle Doppelhaushälfte in Aichach - Flexibles Wohnen trifft nachhaltige Bauqualität

€ 471.993
Kaufpreis
113,64 m²
Wohnfläche ca.
3
Zimmer
249 m²
Grundstücksfl. ca.

Der Anbieter dieses Objekts hat gegenüber der AVIV Germany GmbH als Betreiber dieses Online-Marktplatzes erklärt, nicht als Unternehmer im Sinne des § 1 KSchG zu handeln. Die im Verbraucherschutzrecht der Union verankerten Verbraucherrechte (insbesondere Informationspflichten und Rücktritts- bzw. Widerrufsrechte) finden auf den Vertrag zwischen dem Anbieter des Objekts und Ihnen (dem Interessenten) keine Anwendung.

Provisionsfrei
Gewerblicher Anbieter

Der Anbieter dieses Objekts hat gegenüber der AVIV Germany GmbH als Betreiber dieses Online-Marktplatzes erklärt, als Unternehmer im Sinne des § 1 KSchG zu handeln.

AdresseStraße nicht freigegeben
86551 Aichach, Aichach-Friedberg (Kreis) 
(Ecknach)
Auf Karte ansehen

Preise & Kosten

Kaufpreis € 471.993

Provision für Käufer

provisionsfrei

Lage

Wir bitten um Ihr Verständnis, dass wir keine direkten Beratungsgespräche zu einzelnen Grundstücken führen. Stattdessen stellen wir allen Interessenten einen umfassenden und kostenlosen Grundstücksservice zur Verfügung. Dabei möchten wir darauf hinweisen, dass wir nicht als Grundstücksmakler tätig sind, sondern Sie bei der...

Mehr anzeigen

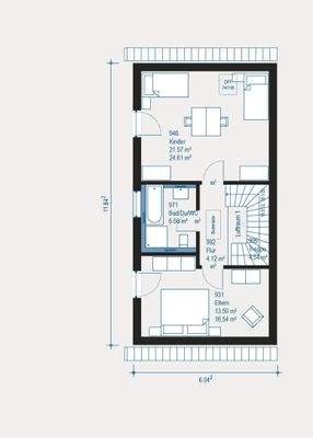
Das Haus

Kategorie

Doppelhaushälfte

  • Zustand: projektiert
  • nicht unterkellert
  • Bad mit Wanne und Dusche, Gäste-WC
  • Böden: Fliesenboden, Laminat

Energie & Heizung

Weitere Energiedaten

Haustyp

KfW 55

Heizungsart

Fußbodenheizung, Luft-/Wasser-Wärmepumpe

Details

Objektbeschreibung

Diese projektiert geplante Doppelhaushälfte in Aichach, im Landkreis Aichach-Friedberg, bietet Ihnen mit 3 Zimmern und einer großzügigen Wohnfläche von 113,64 m² ein komfortables Zuhause für die ganze Familie. Das 249 m² große Grundstück und die zwei Etagen bieten ausreichend Raum für Ihre persönlichen Gestaltungsideen. Die...

Mehr anzeigen

Ausstattung

Die Ausstattung umfasst:

- Gehobene Bodenbeläge aus Fliesen und Laminat
- Luft-Wasser-Wärmepumpe als umweltfreundliche Heiztechnik
- Badezimmer mit Dusche und Wanne sowie zusätzliches Gäste-WC
- Zwei Schlafzimmer und großzügige Raumaufteilung auf zwei Etagen
- Dreifach verglaste Fenster inklusive...

Mehr anzeigen

Weitere Informationen

Sonstiges
allkauf steht für maximale Sicherheit, kurze Lieferzeiten und garantierte Fertigstellung. Mit unserem Dienstleistungspaket Active Time für Ambitionierte ist bereits ein umfangreiches Leistungspaket enthalten, das Estrich, Sanitär, Heizung und Elektroinstallation umfasst - Sie übernehmen lediglich den Trockenbau...

Mehr anzeigen

Anbieter der Immobilie

allkauf haus

Kimmerle-Ring 2, 89312 Günzburg

user

Frau Lucy Kil

Dein Ansprechpartner

Anbieter-Website Anbieter-Profil Anbieter-Impressum

Online-ID: 2pttw57

Referenznummer: 4216-348-kw14-43494

Finde Angebote wie dieses

imageimageimage

Hier geht es zu unserem Impressum, den Allgemeinen Geschäftsbedingungen, den Hinweisen zum Datenschutz und nutzungsbasierter Online-Werbung.