

Bamberger Maklerhaus GmbH
Herr Harald Kaiser
015 ···
Nr. anzeigenPreise & Kosten
Warum sehe ich diese Anzeige? – Du siehst diese Anzeige basierend auf Ihrer Navigation auf unserer Website und den Suchkriterien, die du verwendet hast.
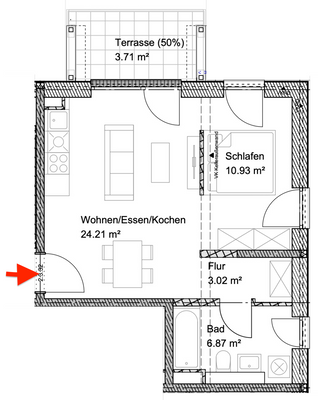
Die Wohnung
Kategorie
Terrassenwohnung
Wohnungslage
Erdgeschoss
Derzeitige Nutzung
frei
Wohnanlage
Energie & Heizung
Warum sehe ich diese Anzeige? – Du siehst diese Anzeige basierend auf Ihrer Navigation auf unserer Website und den Suchkriterien, die du verwendet hast.
Energieausweistyp
Bedarfsausweis
Gebäudetyp
Wohngebäude
Baujahr laut Energieausweis
2025
Wesentliche Energieträger
Fernwärme
Gültigkeit
05.09.2025 bis 05.09.2035
Effizienzklasse
A
Endenergiebedarf
47,00 kWh/(m²·a)
Weitere Energiedaten
Energieträger
Fernwärme
Haustyp
KfW 55
Heizungsart
Fußbodenheizung, Zentralheizung
Details
Objektbeschreibung
Objektbeschreibung
Werden Sie Mieter im LagardeCampus?
Es wartet einen moderne Neubauwohnung mit allen Annehmlichkeiten auf Sie. Moderner Grundriss mit offener Raumgestaltung, sowie Terrasse und Kellerraum gehören mit zu der Wohnung.
Die Wohnung wird mit einer Einbauküche...
Weitere Informationen
Weiter Information:
- Kaltmiete 620€
- Einbauküche 100€
- mtl. Nebenkosten 140,00€
Gesamt: 860,00€
Besichtigungstermine
Kontakt & Besichtigung:
Sie haben Interesse an unserem Angebot?
Wir freuen uns auf Ihre Kontaktaufnahme und stehen für weitere Fragen zur...
Dokumente
Anbieter der Immobilie
Bamberger Maklerhaus GmbH
Kirschäckerstraße 23, 96052 Bamberg

Online-ID: 2pttd54
Referenznummer: 2.3.32
Finde Angebote wie dieses
Hier geht es zu unserem Impressum, den Allgemeinen Geschäftsbedingungen, den Hinweisen zum Datenschutz und nutzungsbasierter Online-Werbung.