

Carossa Immobilien
Herr Kadir Keskin
+49 ···
Nr. anzeigenPreise & Kosten
Provision für Käufer
2,38 % inkl. MwSt.
Lage
Die Immobilie befindet sich in der Bayerwaldsiedlung, einer familienfreundlichen Wohnlage der Stadt Landshut. Über kurze Wege erreichen Sie umliegende Einkaufsmöglichkeiten wie REWE, Netto oder Edeka für den täglichen Bedarf sowie Restaurants und weitere Einzelhandelsgeschäfte. Schulen und mehrere Kindergärten befinden sich...
Das Haus
Kategorie
Einfamilienhaus
Baujahr
1962
Bezug
sofort
Energie & Heizung
Warum sehe ich diese Anzeige? – Du siehst diese Anzeige basierend auf Ihrer Navigation auf unserer Website und den Suchkriterien, die du verwendet hast.
Energieausweistyp
Bedarfsausweis
Gebäudetyp
Wohngebäude
Baujahr laut Energieausweis
1962
Wesentliche Energieträger
OEL
Gültigkeit
bis 20.11.2035
Effizienzklasse
H
Endenergiebedarf
308,00 kWh/(m²·a)
Weitere Energiedaten
Haustyp
Massivhaus
Energieträger
Öl
Heizungsart
Zentralheizung
Details
Objektbeschreibung
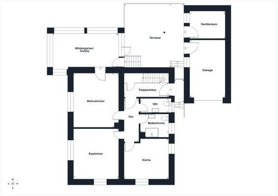
Dieses gepflegte Einfamilienhaus überzeugt durch seine durchdachte Aufteilung und vielseitige Nutzungsmöglichkeiten in einer besonders familienfreundlichen Wohnlage der Landshuter Bayerwaldsiedlung mit sehr guter Infrastruktur. Auf einem Grundstück von ca. 615 m² bietet die Immobilie rund 137 m² Wohnfläche, verteilt auf zwei...
Ausstattung
* Photovoltaikanlage (ca. 9 kWp) mit Batteriespeicher (ca. 10 kWh)
* Modernisierte Badezimmer und WCs
* Elektr. Fußbodenheizung in den WCs
* Schlafzimmer mit Parkettböden
* Voll unterkellert
* beheizter Wintergarten
* Dachspeicher mit Ausbaupotenzial
* Pflegeleicht angelegter Garten
* Teilweise...
Preisinformation
1 Garagenstellplatz
Weitere Informationen
Sonstiges
Unser Service für Sie als Eigentümer: Wir bewerten gern kostenfrei Ihre Immobilie entsprechend dem aktuellen Marktwert, entwickeln eine Ihrem Objekt angepasste Verkaufsstrategie und stehen Ihnen bis zum erfolgreichen Verkauf zur Verfügung. Carossa Immobilien steht als Maklerunternehmen mit seinen Mitarbeitern und...
Anbieter der Immobilie

Online-ID: 2ptry57
Referenznummer: 11788
Finde Angebote wie dieses
Hier geht es zu unserem Impressum, den Allgemeinen Geschäftsbedingungen, den Hinweisen zum Datenschutz und nutzungsbasierter Online-Werbung.