
Froese Bauträger
Frau Kerstin Froese
015 ···
Nr. anzeigenPreise & Kosten
Provision für Käufer
provisionsfrei
Lage
Die Reihenhäuser entstehen am Elchweg 8 ff. in Dortmund-Brackel innerhalb einer bestehenden Siedlungsstruktur und sind hervorragend angebunden. Versorgungseinrichtungen für den täglichen Bedarf, Kindergärten und Schulen sind fußläufig erreichbar. Es besteht eine verkehrstechnische Anbindung sowohl an den öffentlichen...
Das Haus
Kategorie
Reihenendhaus
Baujahr
2027
Energie & Heizung
Warum sehe ich diese Anzeige? – Du siehst diese Anzeige basierend auf Ihrer Navigation auf unserer Website und den Suchkriterien, die du verwendet hast.
Energieausweistyp
Bedarfsausweis
Gebäudetyp
Wohngebäude
Baujahr laut Energieausweis
2027
Wesentliche Energieträger
Umweltwärme
Effizienzklasse
A+
Endenergiebedarf
17,00 kWh/(m²·a)
Weitere Energiedaten
Haustyp
KfW 55
Heizungsart
Fußbodenheizung, Luft-/Wasser-Wärmepumpe, Zentralheizung
Details
Objektbeschreibung
Hier werden drei Reihenhäuser auf einem Grundstück errichtet, geteilt nach WEG. Eineinhalb-geschossige, massive Bauweise, mit Satteldach und Keller. Das Haus erhält ein Wärmedämmverbundsystem und Kunststofffenster mit 3-Scheiben-Verglasung.
Ausstattung
BESONDERE AUSSTATTUNGSMERKMALE:
- Effizienzhaus-55,
- Fußbodenheizung mit Raumthermostaten,
- Kunststofffenster mit 3-Scheiben-Isolierverglasung,
- große Schiebetür zur Terrasse,
- elektrische Rollladen an allen vertikalen Fenstern.
- Heizung: zentrale Luft-Wasser-Wärmepumpe,
- Sanitär- und...
Weitere Informationen
Baubeginn erfolgt: Rohbauarbeiten und Dachstuhl. Bezugsfertig ab Sommer 2027.
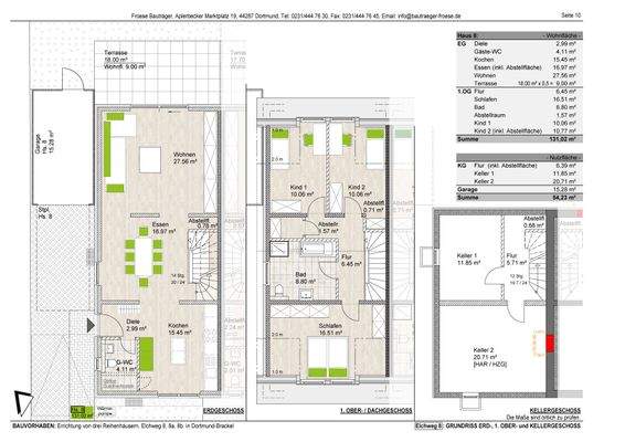
HAUS-Nr. 8
Wohnfläche 131,02 m²
Nutzfläche Keller+Garage 54,23 m²
Gartenfläche SNR ca. 118 m²
Kaufpreis 599.700,- €
Inklusive
- Garage nebst Stellplatz davor
- Außenanlagen
Zuzüglich
- Maler-, Tapezier- und...
Dokumente
Anbieter der Immobilie
Online-ID: 2ptng55
Finde Angebote wie dieses
Hier geht es zu unserem Impressum, den Allgemeinen Geschäftsbedingungen, den Hinweisen zum Datenschutz und nutzungsbasierter Online-Werbung.