

Heidenheimer Treuhand GmbH
Frau Iris Junginger
+49 ···
Nr. anzeigenPreise & Kosten
Provision für Käufer
3,57 % inkl. MwSt.
Mit dem Erhalt dieses Angebotes verpflichten Sie sich, eine eventuelle Außenbesichtigung des Objektes mit äußerster Diskretion vorzunehmen. Weitere Informationen siehe Provisionshinweis.
Lage
Das Objekt liegt in ruhiger Lage in einer Sackgasse auf dem Mittelrain.
Das Wohngebiet Mittelrain hat Einkaufsmöglichkeiten, Kindergärten, Schulen und alles was man in nächster Nähe benötigt. Sehr gute Busverbindungen in die Stadtmitte.
Das Haus
Baujahr
1966
Bezug
sofort
Energie & Heizung
Warum sehe ich diese Anzeige? – Du siehst diese Anzeige basierend auf Ihrer Navigation auf unserer Website und den Suchkriterien, die du verwendet hast.
Energieausweistyp
Bedarfsausweis
Gebäudetyp
Wohngebäude
Baujahr laut Energieausweis
1966
Wesentliche Energieträger
Fernwärme
Gültigkeit
bis 12.03.2036
Endenergiebedarf
317,90 kWh/(m²·a)
Details
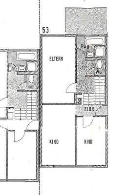
Objektbeschreibung
Dieses sonnige Reiheneckhaus in ruhiger Sackgassenlage bietet ein ideales Zuhause für Familien oder Paare, die Wert auf eine helle Wohnatmosphäre und eine durchdachte Raumaufteilung legen. Die nach Süden ausgerichtete Terrasse mit angrenzendem Garten lädt zu entspannten Stunden im Freien ein und sorgt für eine optimale...
Ausstattung
Heizung: Fernwärme, Kamin
Fenster: Holz-Alu-Fenster, teilweise im UG Holzfenster
Bodenbeläge: Fliesen, Textil
Bad/Sanitär:
EG: wandhängendes WC mit Waschtisch
OG: Badewanne, Dusche, 2 Waschtische und Stand-WC
Innentüren: Holztüren, teilweise weiß
Terrasse/Balkon: mit Fliesenbelag
Weitere Informationen
Provisionshinweis
3,57 % inkl. MwSt.
Mit dem Erhalt dieses Angebotes verpflichten Sie sich, eine eventuelle Außenbesichtigung des Objektes mit äußerster Diskretion vorzunehmen. Die Maklerprovision von 3,57 % des Kaufpreises (inkl. MwSt.), ist vom Käufer an uns zu entrichten, und am Tag des Hauptvertragsabschlusses...
Anbieter der Immobilie
Heidenheimer Treuhand GmbH
Karlstrasse 3, 89518 Heidenheim

Online-ID: 2ptnb57
Referenznummer: A1800
Finde Angebote wie dieses
Hier geht es zu unserem Impressum, den Allgemeinen Geschäftsbedingungen, den Hinweisen zum Datenschutz und nutzungsbasierter Online-Werbung.