

VIVEE Immobillienbuero
004 ···
Nr. anzeigenPreise & Kosten
Provision für Käufer
provisionsfrei
Das Haus
Kategorie
Doppelhaushälfte
Details
Objektbeschreibung
NEU GEBAUTE DOPPELHAUSHÄLFTEN IN POLOP
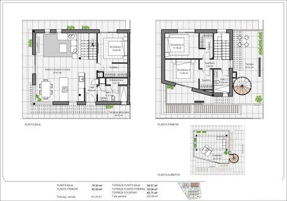
Neubau von modernen Reihenhäusern und Doppelhaushälften mit mehreren Terrassen und Solarium, komplett eingezäunt, mit Parkplatz für Fahrzeuge und privatem Swimmingpool in Polop.
Moderne Immobilien mit 3 geräumigen Schlafzimmern mit Einbauschränken (das Hauptschlafzimmer im Erdgeschoss...
Weitere Informationen
Stichworte
Nutzfläche: 121,00 m², Gesamtfläche: 121,00 m², Anzahl der Schlafzimmer: 3, Anzahl der Badezimmer: 2, Bundesland: Alicante (Costa Blanca)>
Anbieter der Immobilie
VIVEE Immobillienbuero
Calle Salvador Dali 13, C.C Via Park II, Local 15, 03189 Orihuele Costa
004 ···
Nr. anzeigenOnline-ID: 2pt9457
Referenznummer: 98096
Finde Angebote wie dieses
Hier geht es zu unserem Impressum, den Allgemeinen Geschäftsbedingungen, den Hinweisen zum Datenschutz und nutzungsbasierter Online-Werbung.