
Neue Bitterfelder Wohnungs- und Baugesellschaft mbH
Vermietungsservice
034 ···
Nr. anzeigenPreise & Kosten
Warum sehe ich diese Anzeige? – Du siehst diese Anzeige basierend auf Ihrer Navigation auf unserer Website und den Suchkriterien, die du verwendet hast.
Lage
Die Wohnung befindet sich direkt am Leineufer. Umgeben von etlichen Alt-und Neubauten, dem historischen Marktplatz verbunden mit seinem Boulevard und dem Goitzschesee bietet dieses Wohnviertel Abwechslung in jeglicher Hinsicht. Nutzen sie hier die zahlreichen Möglichkeiten der sportlichen Aktivitäten wie z. B. walken, laufen...
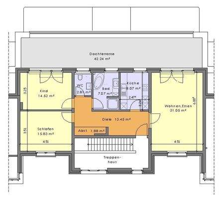
Die Wohnung
Wohnungslage
2. Geschoss (Dachgeschoss)
Bezug
01.05.2026
Wohnanlage
Energie & Heizung
Warum sehe ich diese Anzeige? – Du siehst diese Anzeige basierend auf Ihrer Navigation auf unserer Website und den Suchkriterien, die du verwendet hast.
Weitere Energiedaten
Energieträger
Fernwärme
Details
Objektbeschreibung
Der 3-geschossige Neubau wurde 2010 gebaut. Insgesamt befinden sich 12 Wohnungen aufgeteilt auf 3 Hauseingänge in diesem Wohnobjekt. Die großzügig geschnittenen 2 bis 3-Raumwohnungen haben eine Wohnfläche von ca. 57 m² bis ca. 99 m². Die Gesamtgebäudewohnfläche beträgt 977,94 m². Beheizt wird das Objekt über eine...
Ausstattung
Die großzügig geschnittene 3-Raum- Wohnung überzeugt mit ihren großen Panoramafensterfronten und bietet so ein einzigartiges Wohngefühl. Die Wohnung ist mit einer Fußbodenheizung ausgestattet. Alle Fenster sind mit Außenjalousien ausgestattet. Die Küche verfügt über einen Fliesenspiegel, einen E-Herd,- und...
Preisinformation
Nettokaltmiete: 1.499,00 EUR
Weitere Informationen
Energiepass
Gültig bis: 06-2034
Stichworte
Fahrradraum, beheizbare Fläche: 94,68 m²
Dokumente
Anbieter der Immobilie
Neue Bitterfelder Wohnungs- und Baugesellschaft mbH
Burgstraße 37, 06749 Bitterfeld-Wolfen
Online-ID: 2pt5t56
Referenznummer: 1.854.8310
Finde Angebote wie dieses
Hier geht es zu unserem Impressum, den Allgemeinen Geschäftsbedingungen, den Hinweisen zum Datenschutz und nutzungsbasierter Online-Werbung.