
HausHirsch GmbH
Herr Cassian Köster
004 ···
Nr. anzeigenPreise & Kosten
Provision für Käufer
3,87 %
Lage
Das Westend-Süd zählt zu den prestigeträchtigsten und städtebaulich bedeutendsten innenstadtnahen Quartieren der Stadt Frankfurt am Main. Der Stadtteil liegt westlich der historischen Innenstadt und wird im Osten durch die Taunusanlage und den Beginn des Bankenviertels, im Westen durch die Bockenheimer Landstraße sowie im...
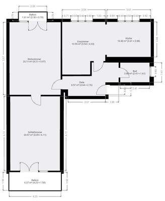
Die Wohnung
Wohnanlage
Energie & Heizung
Warum sehe ich diese Anzeige? – Du siehst diese Anzeige basierend auf Ihrer Navigation auf unserer Website und den Suchkriterien, die du verwendet hast.
Energieausweistyp
Verbrauchsausweis
Gebäudetyp
Wohngebäude
Baujahr laut Energieausweis
1982
Wesentliche Energieträger
OEL
Gültigkeit
bis 21.01.2035
Effizienzklasse
F
Endenergieverbrauch
196,80 kWh/(m²·a)
Weitere Energiedaten
Energieträger
Öl
Details
Objektbeschreibung
Herzlich Willkommen in Ihrem neuen Zuhause!
In herrlicher Lage des Frankfurter Westend-Süd in einer ruhigen Seitenstraße befindet sich dieses gepflegte 8 Parteienhaus aus 1958. Im 3. Obergeschoss gelangen Sie über den hell gefliesten Flur mit Nische für einen Einbauschrank und Garderobe in den großzügigen Wohnbereich...
Ausstattung
- 2.OG
- Top Lage
- Stellplatz
- Balkon
- Loggia
- Tageslichtbad
- Wohnküche
- Doppelverglasung
- Öl-Heizung
Preisinformation
1 Stellplatz, Kaufpreis: 15.000,00 EUR
Weitere Informationen
Stichworte
Nutzfläche: 4,00 m², Anzahl der Schlafzimmer: 2, Anzahl der Badezimmer: 1, Balkon-Terrassen-Fläche: 8,00 m², Anzahl der Wohneinheiten: 10, Bundesland: Hessen, 3 Etagen
Anbieter der Immobilie
Online-ID: 2pt3v56
Referenznummer: OD080
Finde Angebote wie dieses
Hier geht es zu unserem Impressum, den Allgemeinen Geschäftsbedingungen, den Hinweisen zum Datenschutz und nutzungsbasierter Online-Werbung.