
FischerHaus GmbH & Co. KG
Frau Barbara Fuchs
+49 ···
Nr. anzeigenPreise & Kosten
Provision für Käufer
provisionsfrei
Lage
Lage - Wörth an der Donau
Die angebotene Immobilie befindet sich in ruhiger Wohnlage im Bereich Ahornweg im Ortsteil Oberachdorf, einem gewachsenen Dorf der Stadt Wörth an der Donau im Landkreis Regensburg. Oberachdorf zeichnet sich durch seinen ländlich geprägten Charakter mit hoher Wohnqualität aus und ist...
Das Haus
Kategorie
Reihenmittelhaus
Baujahr
2026
Energie & Heizung
Warum sehe ich diese Anzeige? – Du siehst diese Anzeige basierend auf Ihrer Navigation auf unserer Website und den Suchkriterien, die du verwendet hast.
Weitere Energiedaten
Haustyp
KfW 40
Heizungsart
Fußbodenheizung, Zentralheizung
Details
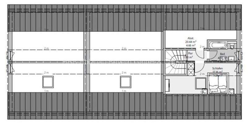
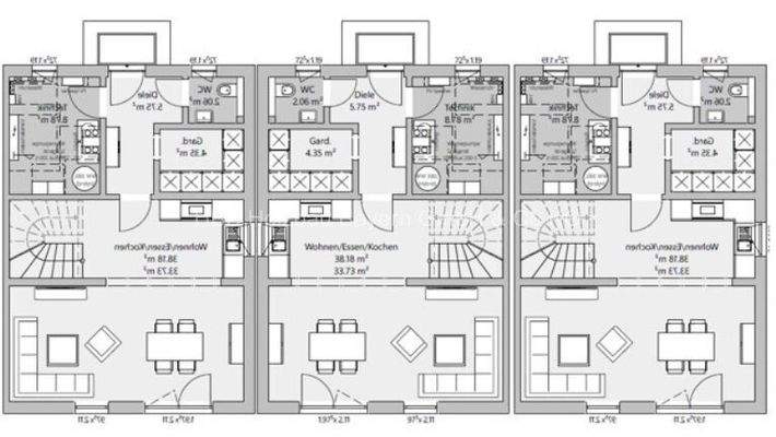
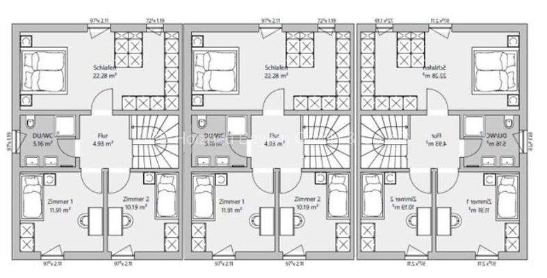
Objektbeschreibung
Dieses attraktive Grundstück in Wörth an der Donau bietet die ideale Grundlage für Ihr neues Zuhause - perfekt geeignet für die Bebauung mit einem modernen Reihenhaus.
In Kombination mit dem durchdachten Hauskonzept "SCALA" entsteht ein energieeffizientes und zukunftssicheres Eigenheim - ideal für Familien, Paare oder...
Ausstattung
Energie & Technik
- Energieeffiziente Bauweise (KfW-Standard möglich)
- Luft-Wasser-Wärmepumpe
- Fußbodenheizung
- dezentrale Lüftung (optional die zentrale Variante)
Weitere Informationen
Sonstiges
Es handelt sich um eine Projektierung von mehreren Grundstücken. Dieses Expose bezieht sich auf das Grunstück 03 B
(zzgl. Baunebenkosten, Carport oder Garage, Außenanlagen, ggf. Sonderausstattung)
Das neu erschlossene Baugebiet bietet viele Möglichkeiten für Einfamilienhäuser, Doppel- und Reihenhäuser...
Anbieter der Immobilie
Online-ID: 2pt3s56
Referenznummer: Wörth_01_RHH
Finde Angebote wie dieses
Hier geht es zu unserem Impressum, den Allgemeinen Geschäftsbedingungen, den Hinweisen zum Datenschutz und nutzungsbasierter Online-Werbung.