

ICB GmbH Immobilien Consulting Berlin
Herr/Frau Team ICB Berlin
030 ···
Nr. anzeigenPreise & Kosten
Provision für Käufer
3,57% Käufercourtage inkl. MwSt
Lage
Mit dem Tempelhofer Feld und dem Teltowkanal in unmittelbarer Umgebung, dem Kranoldplatz vor der Haustür und in der Nähe vom Bergmannkiez und Maybachufer finden Sie hier im Trendviertel Neukölln einen gelungenen Mix aus großstädtischem Livestyle, abwechslungsreicher Gastronomie und vielseitigen Einkaufsmöglichkeiten vor...
Die Wohnung
Wohnungslage
4. Geschoss (Dachgeschoss)
Bezug
nach Absprache
Wohnanlage
Details
Objektbeschreibung
Größer, Höher, Weiter - Die prägnante Turmarchitektur dominiert selbstbewusst die Platzlage an der südlichen Ecke des Kranoldplatzes. Der beeindruckende Eckaltbau aus der Gründerzeit glänzt nach der Ende 2025 abgeschlossenen Renovierung im neuen Erscheinungsbild.
Bereits im 4. Obergeschoss liegen vier Dachwohnungen...
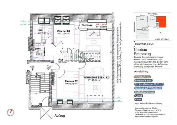
Ausstattung
Fußbodenheizung
Premiun Bäder
Rooftop-Terrasse 29,11 m²
Terrasse auf Wohnebene
Aufzug
Keller
Weitere Informationen
Energiepass
Energieausweis wird bei Besichtigung vorgelegt.
Stichworte
Gesamtfläche: 105,95 m², Grundstücksfläche: 105,95 m², Anzahl der Schlafzimmer: 2, Anzahl Balkone: 1, Anzahl der Wohn-Schlafzimmer: 3, 4 Etagen, modernisiert: 2025
Dokumente
Anbieter der Immobilie
ICB GmbH Immobilien Consulting Berlin
Niebuhrstraße 72, 10629 Berlin

Online-ID: 2pt3l53
Referenznummer: BeKraD1GS
Finde Angebote wie dieses
Hier geht es zu unserem Impressum, den Allgemeinen Geschäftsbedingungen, den Hinweisen zum Datenschutz und nutzungsbasierter Online-Werbung.