
M.I.C. IMMOBILIEN Victor M.A. Woehe
Herr Victor Woehe
004 ···
Nr. anzeigenPreise & Kosten
Provision für Käufer
3 % des Kaufpreises inkl. MwSt. inkl. MwSt.
Lage
- Im Speckgürtel von Hamburg
- Delingsdorf ist ca. 8 Autominuten von Ahrensburg und ca. 15 Autominuten von Hamburg entfernt.
Das Haus
Kategorie
Einfamilienhaus
Baujahr
1925
Energie & Heizung
Warum sehe ich diese Anzeige? – Du siehst diese Anzeige basierend auf Ihrer Navigation auf unserer Website und den Suchkriterien, die du verwendet hast.
Energieausweistyp
Verbrauchsausweis
Gebäudetyp
Wohngebäude
Baujahr laut Energieausweis
1925
Wesentliche Energieträger
ERDGAS_LEICHT
Gültigkeit
bis 25.09.2035
Effizienzklasse
F
Endenergieverbrauch
170,10 kWh/(m²·a)
Weitere Energiedaten
Haustyp
Massivhaus
Energieträger
Gas
Heizungsart
Zentralheizung
Details
Objektbeschreibung
Zum Verkauf steht ein sehr gepflegtes und saniertes Einfamilienhaus auf einem attraktiven Eckgrundstück.
Das Haus wurde ca. 1925 erbaut und im Jahr 2015 umfassend energetisch saniert.
Das Objekt verfügt über 4 Zimmer, verteilt auf ca. 130 m² Wohnfläche sowie eine angebaute Garage mit
Dachboden und 2 elektrischen...
Ausstattung
Raumaufteilung
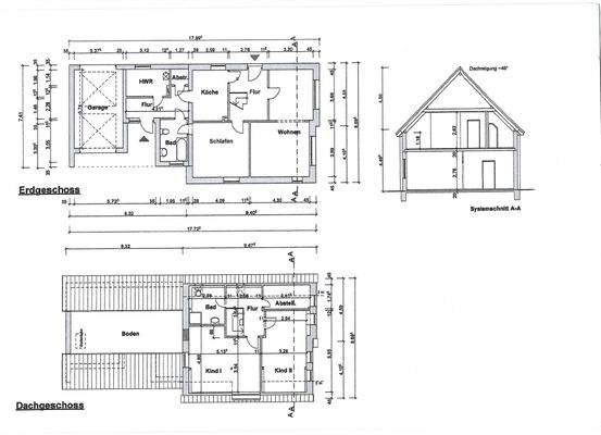
Erdgeschoss:
- Großzügiges, 2-teiliges Wohnzimmer
- Schlafzimmer mit direktem Zugang zum Bad
- Vollbad mit Fenster
- Flur
- Einbauküche mit Terrazzo-Fußboden
- Hauswirtschaftsraum
Obergeschoss:
- Galerie
- 2 Schlafzimmer
- Großzügiges Duschbad
-...
Preisinformation
3 Stellplätze
1 Garagenstellplatz
Weitere Informationen
Sonstiges
Dies ist ein Gemeinschaftsgeschäft mit unserer Partnerfirma VICTORIA HEYDECK IMMOBILIEN.
Weitere Informationen:
Wir sind ein familiengeführtes Immobilienunternehmen und seit 1997 verlässlicher Partner für den Verkauf Ihrer Immobilie in Hamburg, Ostseeküste sowie auch überregional. Durch die...
Anbieter der Immobilie
M.I.C. IMMOBILIEN Victor M.A. Woehe
Königsberger Straße 2, 22175 Hamburg
Online-ID: 2psww57
Referenznummer: MIC145
Finde Angebote wie dieses
Hier geht es zu unserem Impressum, den Allgemeinen Geschäftsbedingungen, den Hinweisen zum Datenschutz und nutzungsbasierter Online-Werbung.