
Immobilienservice Ronny Landgraf
Herrn Ronny Landgraf
037 ···
Nr. anzeigenPreise & Kosten
Kaution
720,00
Warum sehe ich diese Anzeige? – Du siehst diese Anzeige basierend auf Ihrer Navigation auf unserer Website und den Suchkriterien, die du verwendet hast.
Lage
Dieses Objekt liegt Zentrumsnah in der direkten Nähe zum Altmarkt und nur wenige Gehminuten vom Bahnhof.
Einkaufsmöglichkeiten, Schulen, Kindergärten, medizinische Versorgung, gemütliche Lokale sind in der Stadt vorhanden.
Die Große Kreisstadt Hohenstein - Er. verfügt über ca. 15.000 Einwohner (stand 31.12.2017)...
Die Wohnung
Bezug
sofort
Wohnanlage
Energie & Heizung
Warum sehe ich diese Anzeige? – Du siehst diese Anzeige basierend auf Ihrer Navigation auf unserer Website und den Suchkriterien, die du verwendet hast.
Weitere Energiedaten
Energieträger
Gas
Heizungsart
Fußbodenheizung
Details
Objektbeschreibung
Kurzbeschreibung
Weitere Bilder der Wohnung folgen in Kürze
Objekt
? Balkon
? PVC Boden im Wohnzimmer
? Teppichboden im Schlafzimmer
? PVC Boden in der Küche
? Bad mit Dusche, Wanne, Waschmaschinenanschluss, Handtuchheizkörper
? Abstellraum in der Wohnung
? Fußbodenheizung
? traumhafter...
Ausstattung
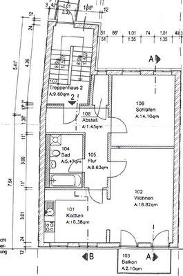
Zur Vermietung steht diese gepflegte und helle 2-Zimmerwohnung in einem kleinen, modernen Mehrfamilienhaus in Hohenstein-Ernstthal. Die Wohnung überzeugt insbesondere durch ihren schönen Ausblick über den Stadtkern sowie den Ankerberg, der sowohl vom Wohnzimmer als auch vom Balkon aus genossen werden kann.
Die...
Weitere Informationen
Energiepass
Art: VERBRAUCH
Gültig bis: 10-2028
Skala: 57.6
Sonstiges
Bitte erlauben Sie uns folgenden Hinweis:
Bei den ggf. beigefügten Fotos handelt es sich teilweise um Ausstattungsbeispiele.
Die in diesem Angebot enthaltenen Angaben, Preisangaben und Abmessungen beruhen auf Angaben eines...
Anbieter der Immobilie

Immobilienservice Ronny Landgraf
Rathausstr.45, 09337 Callenberg
Online-ID: 2psvx56
Referenznummer: VM - AM3 HOT OG
Finde Angebote wie dieses
Weitere Immobilien
Hier geht es zu unserem Impressum, den Allgemeinen Geschäftsbedingungen, den Hinweisen zum Datenschutz und nutzungsbasierter Online-Werbung.