
Ingo Lubcke Immobilien- & Investmentservice
Herr Ingo Lubcke
040 ···
Nr. anzeigenPreise & Kosten
Kaution
5370
Warum sehe ich diese Anzeige? – Du siehst diese Anzeige basierend auf Ihrer Navigation auf unserer Website und den Suchkriterien, die du verwendet hast.
Lage
Diese KfW-55 Doppelhaushälfte liegt in einer ruhigen 30km Zone, im beliebten Ortsteil Waldenau von Pinneberg bei Hamburg.
Gegenüber liegt ein kleiner Park mit Spielplatz, ein Kindergarten und Schulen mit angrenzenden
Sportstätten. Einkaufsmöglichkeiten für den täglichen Bedarf sind ebenfalls fußläufig zu...
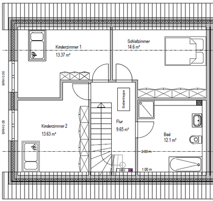
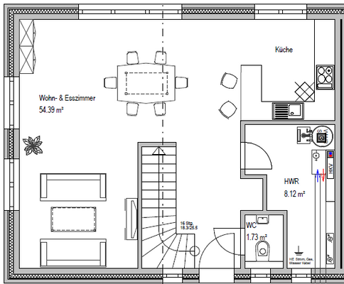
Das Haus
Kategorie
Doppelhaushälfte
Baujahr
2018
Bezug
15.06.2026
Energie & Heizung
Warum sehe ich diese Anzeige? – Du siehst diese Anzeige basierend auf Ihrer Navigation auf unserer Website und den Suchkriterien, die du verwendet hast.
Energieausweistyp
Verbrauchsausweis
Gebäudetyp
Wohngebäude
Baujahr laut Energieausweis
2018
Wesentliche Energieträger
Gas
Gültigkeit
25.06.2018 bis 24.06.2028
Effizienzklasse
A+
Endenergieverbrauch
28,10 kWh/(m²·a)
Weitere Energiedaten
Haustyp
KfW 55
Energieträger
Gas, Solar
Heizungsart
Fußbodenheizung
Details
Objektbeschreibung
Diese KfW-55 Nierdrig-Energiespar-Doppelhaushälfte wurde 2018 mit einer hochwertigen Ausstattung, attraktiven Bädern, Fußbodenbelägen und inkl. Einbauküche erstellt.
Weitere Informationen
Sonstiges
Gas, Wasser, Strom rechnen Sie direkt mit den Energieversorgern ab.
Anbieter der Immobilie
Ingo Lubcke Immobilien- & Investmentservice
Aurikelstieg 45, 22850 Norderstedt
Online-ID: 2pstb55
Finde Angebote wie dieses
Hier geht es zu unserem Impressum, den Allgemeinen Geschäftsbedingungen, den Hinweisen zum Datenschutz und nutzungsbasierter Online-Werbung.