
Erfurter Immobilien-Konzepte/Torsten Erfurth
Herr Ron Seidler
004 ···
Nr. anzeigenPreise & Kosten
Provision für Käufer
3,57 % inkl. der gesetzl. MwSt.
Lage
Das Anwesen befindet sich in Wahns, einem Ortsteil von Wasungen, unweit der Kreisstadt Meiningen, an der durch den Ort führenden Hauptstraße.
Das Grundstück ist hanglagig und bietet vom oberen Grundstücksteil einen herrlichen Blick über die Dächer des Ortes bis weit in die idyllische Landschaft hinein.
Das Haus
Kategorie
Einfamilienhaus
Baujahr
1935
Bezug
sofort
Energie & Heizung
Warum sehe ich diese Anzeige? – Du siehst diese Anzeige basierend auf Ihrer Navigation auf unserer Website und den Suchkriterien, die du verwendet hast.
Energieausweistyp
Bedarfsausweis
Gebäudetyp
Wohngebäude
Baujahr laut Energieausweis
1935
Wesentliche Energieträger
OEL
Gültigkeit
bis 30.06.2035
Effizienzklasse
E
Endenergiebedarf
169,50 kWh/(m²·a)
Weitere Energiedaten
Energieträger
Öl
Heizungsart
Zentralheizung
Details
Objektbeschreibung
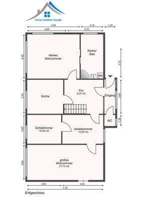
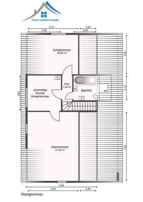
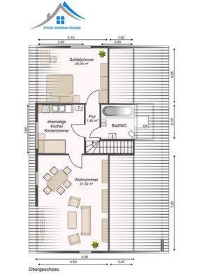
Das ursprünglich in den 1930er-Jahren errichtete Wohnhaus erstreckt sich über zwei Wohngeschosse und ist voll unterkellert (inklusive Garage).
Der Anbau des rechten Gebäudeteils erfolgte um 1976.
Die Fläche der beiden Wohnetagen bemisst sich aktuell zusammen auf über 180 m².
Zum Anwesen gehört die im...
Ausstattung
Zustand und Ausstattung der Räumlichkeiten ist mit einem normalem Abnutzungsgrad der letzten, langjährigen Bewohnung der Alteigentümer zu bezeichnen.
Die Raumaufteilung ist teils sehr großzügig.
Sanierungen/ Modernisierungen am und im Haus wurden vorwiegend in den 1990er Jahren sowie zum Teil fortlaufend...
Preisinformation
3 Garagenstellplätze
Weitere Informationen
Sonstiges
Bitte nutzen Sie auch die Möglichkeit unseres virtuellen 360°-Rundganges durch das Gebäude, um sich einen ersten Eindruck von dem Anwesen verschaffen zu können - fordern Sie diesen einfach bei uns an!
Sie erreichen uns per Mail unter info@erfurter-immo.de oder telefonisch unter 01590 4030988.
Bei...
Anbieter der Immobilie
Online-ID: 2psrb57
Referenznummer: RS-2026-19
Finde Angebote wie dieses
Hier geht es zu unserem Impressum, den Allgemeinen Geschäftsbedingungen, den Hinweisen zum Datenschutz und nutzungsbasierter Online-Werbung.