

HBI - Bergmann Immobilien
Frau Heike Bergmann
033 ···
Nr. anzeigenPreise & Kosten
Provision für Käufer
7,14% inkl. MwSt.
Der Käufer zahlt eine Maklerprovision in Höhe von 7,14% inkl. der gesetzlichen Mehrwertsteuer an die Firma Bergmann Immobilien. Die Provision errechnet sich aus dem Exposépreis und ist fällig am Tag der Beurkundung.
Lage
1A-Lage
Oranienburg ist eine Stadt mit rund 48.000 Einwohnern im Norden Brandenburgs. Sie liegt im Berliner Ballungsraum, ist Kreisstadt des Landkreises Oberhavel und große kreisangehörige Stadt, hat den Status eines Mittelzentrums und ist nach ihrer Einwohnerzahl die fünftgrößte Stadt Brandenburgs.
In Oranienburg...
Die Immobilie
Zu diesem Angebot wurden vom Anbieter keine weiteren Daten hinterlegt. Für weitere Informationen bitte den Anbieter kontaktieren.
Nach Informationen fragenDetails
Objektbeschreibung
Zum Verkauf steht ein bereits vorbereitetes Baugrundstück in gewachsener Wohnlage von Oranienburg. Das Grundstück wurde von den aktuellen Eigentümern bereits vollständig geräumt und für eine Bebauung vorbereitet, sodass der zukünftige Eigentümer direkt mit der Umsetzung eines Bauvorhabens beginnen kann.
Besonders...
Ausstattung
Baugrundstück in Oranienburg
. Grundstück bereits geräumt und bauvorbereitet
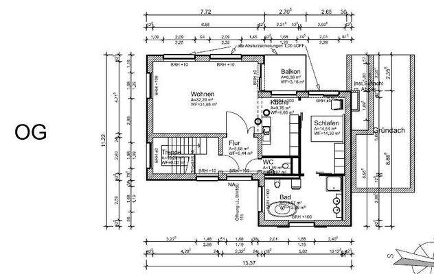
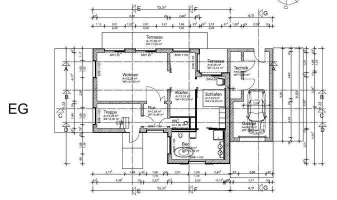
. Baugenehmigung für ein Zweifamilienwohnhaus mit Garage vorhanden
. vollständige Bauplanung inklusive Grundrisse und Wohnflächenberechnung
. geplante Gesamtwohnfläche ca. 173 m²
. Bruttorauminhalt Wohnhaus ca. 924 m³
...
Weitere Informationen
Erschließung
Öffentliches Wasser, öffentliches Abwasser, Strom und Gas liegen straßenseitig an laut Aussage des Eigentümers. DSL ist verfügbar laut Aussage des Internetproviders.
Anbieter der Immobilie
HBI - Bergmann Immobilien
Chausseestr. 7, 16515 Oranienburg

Online-ID: 2psnj56
Referenznummer: 2363
Finde Angebote wie dieses
Hier geht es zu unserem Impressum, den Allgemeinen Geschäftsbedingungen, den Hinweisen zum Datenschutz und nutzungsbasierter Online-Werbung.