

PIPPING Immobilien GmbH & Co. KG
Herr Heiner Marcus Roskothen
+49 ···
Nr. anzeigenPreise & Kosten
Provision für Käufer
3,125 % inkl. USt.
Lage
Die Gemeinde Wentorf liegt etwa 20 km östlich der Hamburger Innenstadt und zählt zu den beliebtesten Lagen im Hamburger Speckgürtel. Überwiegend gepflegte Einfamilienhäuser und luxuriöse Villen prägen den repräsentativen Charakter dieser einmalig schönen Gegend.
Die direkte Nähe zum idyllischen Sachsenwald und zur...
Das Haus
Kategorie
Doppelhaushälfte
Baujahr
1991
Energie & Heizung
Warum sehe ich diese Anzeige? – Du siehst diese Anzeige basierend auf Ihrer Navigation auf unserer Website und den Suchkriterien, die du verwendet hast.
Energieausweistyp
Verbrauchsausweis
Gebäudetyp
Wohngebäude
Baujahr laut Energieausweis
1991
Wesentliche Energieträger
Gas
Gültigkeit
bis 08.10.2035
Effizienzklasse
E
Endenergieverbrauch
136,20 kWh/(m²·a)
Weitere Energiedaten
Energieträger
Gas
Details
Objektbeschreibung
Die sympathische Doppelhaushälfte wurde im Jahre 1991 in massiver Bauweise in einem weißen Klinker mit dazu perfekt korrespondierenden dunklen Dachpfannen errichtet.
Die Beheizung sowie Warmwasserversorgung der Immobilie erfolgt über eine Gaszentralheizung, welche im Jahre 2015 erneuert wurde. Eine Fußbodenheizung im...
Ausstattung
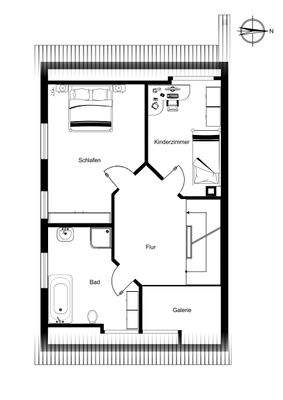
Mit Betreten der Immobilie werden Sie von einer geräumigen Diele in Empfang genommen. Hier lässt sich problemlos eine Garderobe unterbringen.
Über eine helle Holztreppe gelangen Sie von hier aus in alle Etagen des Hauses. Eine Besonderheit im Flur ist die Empore im Obergeschoss, welche durch ein großes Fenster...
Weitere Informationen
Sonstiges
Das ideell geteilte Grundstück mit einer Gesamtgröße von ca. 1.160 m² befindet sich in einer ruhigen Straßenlage. Die hier angebotene Doppelhaushälfte ist mit einem Miteigentumsteil von 1/2 verbunden - somit sind ca. 580 m² Grundstück dieser Immobilie zugehörig. Das Grundstück erreichen Sie über eine gepflasterte...
Anbieter der Immobilie
PIPPING Immobilien GmbH & Co. KG
Bahnhofstr. 12, 21465 Reinbek

Online-ID: 2pslv52
Referenznummer: HR-2591012669
Finde Angebote wie dieses
Hier geht es zu unserem Impressum, den Allgemeinen Geschäftsbedingungen, den Hinweisen zum Datenschutz und nutzungsbasierter Online-Werbung.