
Stanglmaier Immobilien GmbH
Herr Ludwig Pazurek
081 ···
Nr. anzeigenPreise & Kosten
Provision für Käufer
2,38% inkl MwSt.
Lage
Marzling ist eine eigene Gemeinde mit derzeit ca. 3.200 Einwohnern und grenzt direkt an das Stadtgebiet Freising an.
Durch den nahen Flughafen MUC II, dem unmittelbaren Autobahnanschluss Freising-Ost, direkt an der Staatsstraße 2350 und an der Bahnlinie München-Landshut-Regensburg, sowie einer Stadtbusverbindung nach...
Das Haus
Kategorie
Reihenendhaus
Baujahr
2003
Bezug
sofort
Energie & Heizung
Warum sehe ich diese Anzeige? – Du siehst diese Anzeige basierend auf Ihrer Navigation auf unserer Website und den Suchkriterien, die du verwendet hast.
Energieausweistyp
Verbrauchsausweis
Gebäudetyp
Wohngebäude
Wesentliche Energieträger
Gas
Gültigkeit
20.03.2026 bis 20.03.2036
Effizienzklasse
C
Endenergieverbrauch
76,30 kWh/(m²·a)
Weitere Energiedaten
Energieträger
Gas
Heizungsart
offener Kamin, Zentralheizung
Details
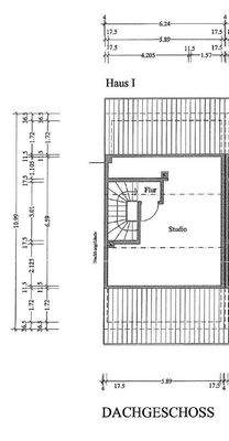
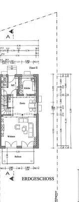
Objektbeschreibung
Hier kommt eine Rarität am Marzlinger Ortsrand auf den Markt!
Der Eingang des Reiheneckhauses befindet sich auf der Nordseite. Zwei geräumige Carportstellplätze befinden sich direkt davor.
Sie betreten das Eckhaus über einen geräumigen Windfang. Zu Ihrer rechten Seite finden Sie das Gäste-WC samt Fenster. Der...
Ausstattung
Das Objekt wurde 2003 in Massivbauweise , vollunterkellert, E+1+D, erbaut. Geräumige Einbauküche in U-Form. Gartengerätehaus, Kaminofenanschluss.
Die Gaszentralheizung stammt aus dem Baujahr. Das Eckhaus befindet sich in einem gepflegten Zustand.
Weitere Informationen
Sonstiges
Das Reiheneckhaus ist leerstehend und kann sofort bezogen werden.
Die Einzelgaragen sind in dieser Siedlung sehr begehrt. Ein weiterer separater Garagenstellplatz kann für 25.000,00 € erworben werden.
Stichworte
Garage vorhanden, Carport vorhanden, Anzahl der Schlafzimmer: 4, Anzahl der Badezimmer: 2...
Anbieter der Immobilie
Stanglmaier Immobilien GmbH
Am Wörth 10, 85354 Freising

Online-ID: 2psf954
Referenznummer: 623
Finde Angebote wie dieses
Hier geht es zu unserem Impressum, den Allgemeinen Geschäftsbedingungen, den Hinweisen zum Datenschutz und nutzungsbasierter Online-Werbung.