

Hansestadt Immobilien GmbH
Frau Rosalia Fallapp
041 ···
Nr. anzeigenPreise & Kosten
Provision für Käufer
3,57 % inkl. der ges. MwSt.
Lage
Die Immobilie befindet sich in ruhiger Wohnlage von Dahlenburg, einer Gemeinde im Landkreis Lüneburg. Die Umgebung ist geprägt von gewachsenen Wohngebieten, viel Grün und einer naturnahen Landschaft.
Dahlenburg verfügt über eine gute Infrastruktur für den täglichen Bedarf. Im Ort befinden sich Supermärkte, Bäckereien...
Das Haus
Kategorie
Bungalow
Baujahr
1978
Bezug
ab sofort
Energie & Heizung
Warum sehe ich diese Anzeige? – Du siehst diese Anzeige basierend auf Ihrer Navigation auf unserer Website und den Suchkriterien, die du verwendet hast.
Energieausweistyp
Bedarfsausweis
Gebäudetyp
Wohngebäude
Wesentliche Energieträger
Öl
Gültigkeit
24.03.2026 bis 23.03.2036
Effizienzklasse
E
Endenergiebedarf
148,46 kWh/(m²·a)
Weitere Energiedaten
Energieträger
Öl
Heizungsart
offener Kamin, Zentralheizung
Details
Objektbeschreibung
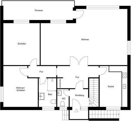
Dieser freistehende Bungalow aus dem Baujahr 1978 befindet sich in ruhiger Wohnlage von Dahlenburg und bietet eine attraktive Kombination aus einem großzügigen Grundstück, solider Bauweise und Potenzial zur individuellen Gestaltung.
Das Haus verfügt über eine Wohnfläche von ca. 124 m² auf einer Ebene und eignet sich...
Ausstattung
- Freistehender Bungalow
- Baujahr 1978
- Wohnfläche ca. 124 m²
- Drei Zimmer im Erdgeschoss (Wohnfläche) + zwei Zimmer im Keller (Nutzfläche)
- 1.039 m² großes, gepflegtes Grundstück
- Ruhige Wohnlage in Dahlenburg
- Großes Wohnzimmer mit gemauertem Kamin
- Modernisiertes Duschbad mit ebenerdiger...
Weitere Informationen
Sonstiges
Bitte haben Sie Verständnis dafür, dass wir unseren Auftraggebern Diskretion zugesagt haben und Ihrer Anfrage nach einem ausführlichen Exposé nur nachkommen können, wenn Sie uns Ihren vollständigen Namen und Ihre postalische Anschrift mitteilen. Anfragen, die ohne die vollständigen Kontaktdaten übersandt werden...
Anbieter der Immobilie

Online-ID: 2psek52
Referenznummer: HI2025576
Finde Angebote wie dieses
Hier geht es zu unserem Impressum, den Allgemeinen Geschäftsbedingungen, den Hinweisen zum Datenschutz und nutzungsbasierter Online-Werbung.