
JP Homes Immobilien e.K.
Herr Martin Lehmann
+49 ···
Nr. anzeigenPreise & Kosten
Provision für Käufer
3,57 % inkl. MwSt.
3,57 % vom Kaufpreis inkl. gesetzl. MwSt.
Lage
Die Immobilie befindet sich in ruhiger, abgeschiedener Lage im Ortsteil Sternebeck der Gemeinde Prötzel. Das ehemalige Bahnhofsgebäude liegt eingebettet in eine grüne Umgebung ohne Durchgangsverkehr - ideal für alle, die Ruhe, Natur und Privatsphäre schätzen.
Ein besonderes Highlight ist die unmittelbare Nähe zum...
Das Haus
Kategorie
Mehrfamilienhaus
Baujahr
1919
Bezug
sofort
Details
Objektbeschreibung
Dieses charmante ehemalige Bahnhofs-Häuschen in 15345 Prötzel OT Sternebeck verbindet historischen Charakter mit modernem Wohnkomfort - ruhig gelegen, eingebettet in Natur und nur wenige Gehminuten vom Sternbecker See entfernt.
Ein besonderes Detail: Die ehemaligen Bahngleise sind heute stillgelegt, sodass Sie den...
Ausstattung
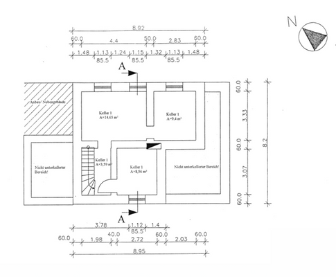
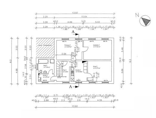
Objektart: Zweifamilienhaus (ehemaliges Bahnhofsgebäude)
Lage: Am Bahnhof, 15345 Prötzel OT Sternebeck
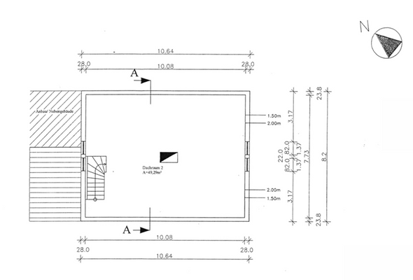
Wohnfläche: ca. 190 m²
Grundstück: ca. 680 m²
Wohneinheiten: 2 (bereits nach WEG geteilt)
Zimmer: ca. 8 Zimmer gesamt
Modernisierung: 2025
Heizung: 2x Luftwärmepumpe (Samsung, 2025)
Terrassen...
Preisinformation
4 Stellplätze
Weitere Informationen
Sonstiges
JP Homes - Ihr Immobilienexperte für Ihr Zuhause!
Von der ersten vertraulichen Beratung bis zur Schlüsselübergabe - wir stehen Ihnen stets zuverlässig und kompetent zur Seite.
Wir bitten um Verständnis, dass wir Anfragen nur in schriftlicher Form (vorzugsweise per E-Mail) bearbeiten können, wobei...
Anbieter der Immobilie
JP Homes Immobilien e.K.
Kopernikusstraße 13, 10245 Berlin
Online-ID: 2psav56
Referenznummer: 136277133#vgAslJ
Finde Angebote wie dieses
Hier geht es zu unserem Impressum, den Allgemeinen Geschäftsbedingungen, den Hinweisen zum Datenschutz und nutzungsbasierter Online-Werbung.