
Holger Robra Immobilien
Frau Saskia Wenda
+49 ···
Nr. anzeigenPreise & Kosten
Provision für Käufer
Bitte beachte, das Angebot kann bei Vertragsabschluss die Zahlung einer Provision beinhalten. Weitere Informationen erhältst Du vom Anbieter.
Lage
Das Grundstück befindet sich in einer ruhigen Seitenstraße, unweit vom Zentrum entfernt.
Die Kreisstadt Salzwedel liegt im nordwestlichen Teil der Altmark. Salzwedel hat ca. 24.000 Einwohner. Benachbarte Städte sind Uelzen (ca. 44 km), Gardelegen (ca. 41 km) und Arendsee (ca. 24 km).
In der Innenstadt befinden...
Das Haus
Kategorie
Einfamilienhaus
Baujahr
1924
Energie & Heizung
Warum sehe ich diese Anzeige? – Du siehst diese Anzeige basierend auf Ihrer Navigation auf unserer Website und den Suchkriterien, die du verwendet hast.
Energieausweistyp
Bedarfsausweis
Gebäudetyp
Wohngebäude
Baujahr laut Energieausweis
1924
Wesentliche Energieträger
Gas
Effizienzklasse
H
Endenergiebedarf
263,80 kWh/(m²·a)
Weitere Energiedaten
Energieträger
Gas
Heizungsart
Zentralheizung
Details
Objektbeschreibung
Das angebotene Mehrfamilienhaus mit integrierter Werkstatt befindet sich in ruhiger Lage in Salzwedel und bietet vielfältige Nutzungsmöglichkeiten für Wohnen und Arbeiten.
Das Grundstück umfasst ca. 281 m². Das Gebäude wurde ca. 1924 in solider Massivbauweise errichtet und verfügt über eine Wohnfläche von ca. 151,9 m²...
Ausstattung
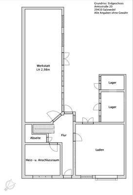
Erdgeschoss: ehemaliges Büro, großer Lagerraum mit Zufahrtmöglichkeit,
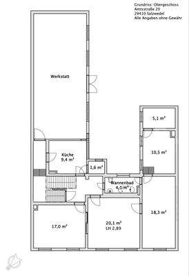
Obergeschoss: 5 Zimmer, Wannenbad. Küche
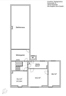
Dachgeschoss: 3 Zimmer. Küche, WC, sehr große Dachterrasse
Nebengelass: 2 Werkstatträume (ges. ca. 100 m²), diverse Abstellräume
Die Beheizung der Wohnräume erfolgt über eine Gastherme. Die...
Weitere Informationen
Provision
Käufer-Provision 3,57 % des Kaufpreises
Sonstiges
Bitte bewahren Sie die Privatsphäre der Eigentümer und betreten Sie das Grundstück nicht. Vereinbaren Sie ausschließlich mit unserem Büro Ihre Besichtigung. Wir freuen uns auf Sie! Dieses Objekt bieten wir im Alleinauftrag an.
In dem Kurzexposé...
Anbieter der Immobilie
Online-ID: 2ps8655
Referenznummer: K350403
Finde Angebote wie dieses
Hier geht es zu unserem Impressum, den Allgemeinen Geschäftsbedingungen, den Hinweisen zum Datenschutz und nutzungsbasierter Online-Werbung.