

ÄRZTE & APOTHEKER IMMOBILIEN
Frau Juliana Hofman
041 ···
Nr. anzeigenPreise & Kosten
Provision für Käufer
3,57% inkl. gesetzl. MwSt.
Lage
Die Immobilie liegt in der Weststadt von Lüneburg, einem etablierten und gut angebundenen Wohngebiet. Die Weststadt zeichnet sich durch eine ruhige, durchmischte Wohnstruktur mit Einfamilienhäusern, kleineren Mehrfamilienhäusern und großzügigen Grünbereichen aus.
Der Stadtteil verfügt über eine sehr gute Nahversorgung...
Das Haus
Kategorie
Einfamilienhaus
Baujahr
1977
Bezug
nach Absprache
Energie & Heizung
Warum sehe ich diese Anzeige? – Du siehst diese Anzeige basierend auf Ihrer Navigation auf unserer Website und den Suchkriterien, die du verwendet hast.
Weitere Energiedaten
Energieträger
Gas
Heizungsart
offener Kamin, Zentralheizung
Details
Objektbeschreibung
Ein gepflegtes Einfamilienhaus aus dem Jahr 1977 präsentiert sich als attraktives Zuhause für alle, die Wert auf Ruhe, Privatsphäre und großzügige Außenflächen legen. Auf einem beeindruckenden Grundstück von 962 m² gelegen, bietet diese Immobilie ein idyllisches Wohnambiente in guter Lage - ideal für Familien und alle, die...
Ausstattung
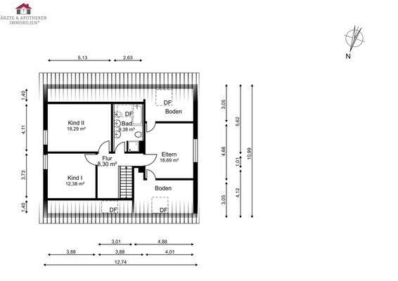
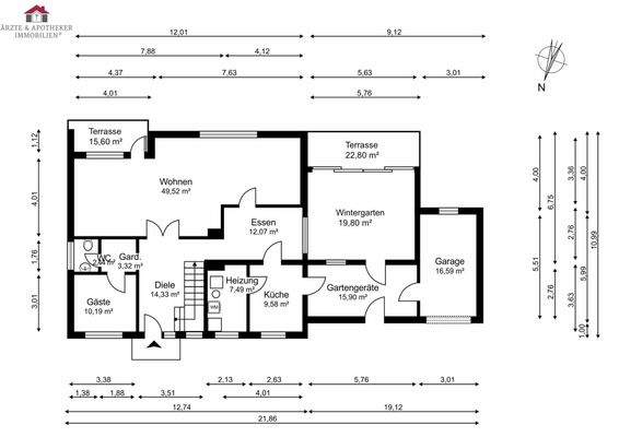
Baujahr 1977 | Wohnfläche ca. 193?m² | Eigentumsgrundstück 962?m²
- Kamin im Wohnzimmer
- Einbauküche
- Gäste-WC (Erdgeschoss)
- Vollbad (Dachgeschoss)
- Hauswirtschaftsraum
- Gaszentralheizung
- Wintergarten
- 2 neue Dachgauben (2003)
- Liebevoll angelegter Garten
- Garage +...
Preisinformation
1 Stellplatz
1 Garagenstellplatz
Weitere Informationen
Sonstiges
Vielen Dank für Ihr Interesse an der von uns angebotenen Immobilie.
Bitte haben Sie Verständnis dafür, dass wir unseren Auftraggebern Diskretion zugesagt haben und Sie daher um die Angabe Ihrer vollständigen Kontaktdaten inkl. Ihrer Telefonnummer bitten müssen.
Gern senden wir Ihnen anschließend ein...
Anbieter der Immobilie
ÄRZTE & APOTHEKER IMMOBILIEN
Lindenstr. 29, 21335 Lüneburg

Online-ID: 2ps5b56
Referenznummer: 262959
Finde Angebote wie dieses
Hier geht es zu unserem Impressum, den Allgemeinen Geschäftsbedingungen, den Hinweisen zum Datenschutz und nutzungsbasierter Online-Werbung.