

Utsch GmbH - Freie Handelsvertretung der Living Fertighaus GmbH
Herr/Frau Matthias Utsch
017 ···
Nr. anzeigenPreise & Kosten
Provision für Käufer
Bitte beachte, das Angebot kann bei Vertragsabschluss die Zahlung einer Provision beinhalten. Weitere Informationen erhältst Du vom Anbieter.
Lage
Troisdorf ist ein lebendiger Standort, der dir und deiner Familie zahlreiche Vorteile bietet. In der Nähe findest du eine Vielzahl von Schulen, darunter die Grundschule Troisdorf-Mitte und die Gesamtschule Troisdorf, die beide für ihre gute Schulbildung bekannt sind. Für die ganz Kleinen gibt es mehrere Kindergärten, die eine...
Das Haus
Kategorie
Bungalow
Energie & Heizung
Warum sehe ich diese Anzeige? – Du siehst diese Anzeige basierend auf Ihrer Navigation auf unserer Website und den Suchkriterien, die du verwendet hast.
Weitere Energiedaten
Haustyp
KfW 55
Details
Objektbeschreibung
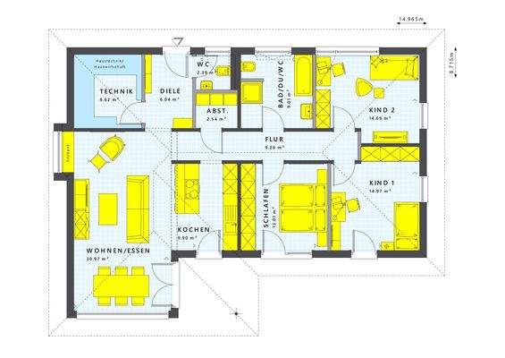
Der Bungalow Solution 110 verleiht Ihnen das unvergleichliche Gefühl von Zuhause auf einer einzigen Ebene. Optional steht Ihnen die Möglichkeit offen, einen Keller hinzuzufügen. In wenigen Schritten erreichen Sie von der Eingangstür den Wohn- und Essbereich, Ihr Schlafzimmer sowie die weiteren Räume wie Kinderzimmer oder Büro...
Ausstattung
Direkt morgens auf die Terasse gehen und den Sonnenaufgang genießen? Vom Schlaf-, Kinder- und Wohnzimmer aus? Geht im Bungalow easy. Denn hier liegen alle wichtigen Zimmer direkt beieinander auf einer Ebene.
Der Schnitt deines Bungalows richtet sich ganz nach deinen Wünschen. Da passt sogar noch eine Abstellkammer für...
Weitere Informationen
Sonstiges
Der Grundstückspreis ist im Anzeigenpreis bereits enthalten.
Das Grundstück erwerben Sie direkt vom Eigentümer über einen Makler.
Heimkommen - ankommen - herunterkommen - wohlfühlen.
Vereinbaren Sie gleich Ihren persönlichen Beratungstermin und sichern Sie Ihrer Familie ein geniales Bauland für...
Anbieter der Immobilie
Utsch GmbH - Freie Handelsvertretung der Living Fertighaus GmbH
Amselweg 60, 53844 Troisdorf

Online-ID: 2prz857
Referenznummer: 30780-1581
Finde Angebote wie dieses
Hier geht es zu unserem Impressum, den Allgemeinen Geschäftsbedingungen, den Hinweisen zum Datenschutz und nutzungsbasierter Online-Werbung.