
Crozilla.com
Opereta
+38 ···
Nr. anzeigenPreise & Kosten
Provision für Käufer
Bitte beachte, das Angebot kann bei Vertragsabschluss die Zahlung einer Provision beinhalten. Weitere Informationen erhältst Du vom Anbieter.
Die Wohnung
Wohnungslage
2. Geschoss
Wohnanlage
Details
Objektbeschreibung
Zweizimmerwohnung, zweiter Stock mit Aufzug, erste Reihe zum Meer, Sukosan, Zadar
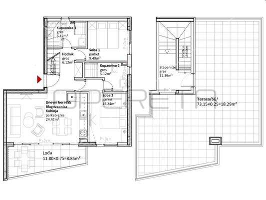
Die Wohnung S06 mit einer Nettonutzfläche von 104 m2 befindet sich im zweiten Stock eines neuen Gebäudes in Sukosan.
Das Penthouse im zweiten Stock besteht aus einem Wohnzimmer mit Küche und Esszimmer, zwei Schlafzimmern und zwei...
Weitere Informationen
Stichworte
Anzahl der Schlafzimmer: 2, Anzahl der Badezimmer: 2, 1 Etagen
Anbieter der Immobilie
Crozilla.com
Nova cesta 60, 10000 ZAGREB
Online-ID: 2prv254
Referenznummer: 19345491_1
Finde Angebote wie dieses
Hier geht es zu unserem Impressum, den Allgemeinen Geschäftsbedingungen, den Hinweisen zum Datenschutz und nutzungsbasierter Online-Werbung.