Hundertmark Immobilien

Herr Uwe Hundertmark

Wohnpark Jenzigblick - Altersgerechte Eigentumswohnung im Obergeschoss - barrierefrei mit Aufzug und Tiefgarage - Baubeginn erfolgt!

€ 583.000
Kaufpreis
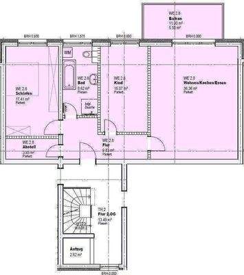
96,69 m²
Wohnfläche ca.
3
Zimmer

Der Anbieter dieses Objekts hat gegenüber der AVIV Germany GmbH als Betreiber dieses Online-Marktplatzes erklärt, nicht als Unternehmer im Sinne des § 1 KSchG zu handeln. Die im Verbraucherschutzrecht der Union verankerten Verbraucherrechte (insbesondere Informationspflichten und Rücktritts- bzw. Widerrufsrechte) finden auf den Vertrag zwischen dem Anbieter des Objekts und Ihnen (dem Interessenten) keine Anwendung.

Provisionsfrei
Gewerblicher Anbieter

Der Anbieter dieses Objekts hat gegenüber der AVIV Germany GmbH als Betreiber dieses Online-Marktplatzes erklärt, als Unternehmer im Sinne des § 1 KSchG zu handeln.

AdresseStraße nicht freigegeben
07749 Jena 
(Wenigenjena)
Auf Karte ansehen

Preise & Kosten

Kaufpreis € 583.000 1 Stellplatz € 23.000

Provision für Käufer

provisionsfrei

Lage

Das Tümplingviertel befindet sich östlich zum Stadtzentrum von Jena. Es gehört mit zu den begehrten Wohnlagen von Jena. Hier ist es ruhig, grün und es ist alles zu Fuß erreichbar. Schulen, Kindergärten und Geschäfte des täglichen Bedarfs befinden sich ebenso in der Nähe wie der öffentliche Nahverkehr.
Wie in kaum einer...

Mehr anzeigen

Die Wohnung

Bezug

März 2027

  • Bad mit Fenster und Wanne
  • Balkon, Terrasse
  • barrierefrei, rollstuhlgerecht
  • Böden: Fliesenboden, Parkett
  • Fenster: Kunststofffenster
  • Zustand: Erstbezug
  • kontrollierte Be- und Entlüftungsanlage
  • Weitere Räume: Abstellraum
  • Anschlüsse: DSL-Anschluss

Wohnanlage

  • Zustand: Neubau
  • Personenaufzug
  • 1 Stellplatz: Tiefgarage

Energie & Heizung

A+
A
B
C
D
E
F
G
H
0 25 50 75 100 125 150 175 200 225 250 +

Energieausweistyp

Bedarfsausweis

Gebäudetyp

Wohngebäude

Baujahr laut Energieausweis

2024

Wesentliche Energieträger

Umweltthermie

Gültigkeit

22.11.2023 bis 22.11.2033

Effizienzklasse

A

Endenergiebedarf

31,00 kWh/(m²·a)

Weitere Energiedaten

Energieträger

Gas

Heizungsart

Fußbodenheizung, Luft-/Wasser-Wärmepumpe, Zentralheizung

Details

Objektbeschreibung

Wohnpark Jenzigblick
In den letzten Wochen wurde viel Zeit damit verbracht die Wohnanlage so umzuplanen, dass sie für die späteren Nutzer noch attraktiver wird. Dazu wurden aus dem ursprünglich sehr großen L-förmigen Baukörper mit einer großen Tiefgarage zwei kleinere Mehrfamilienhäuser mit zwei zugehörigen Tiefgaragen und...

Mehr anzeigen

Weitere Informationen

Wohnungsangebote
Es entstehen großzügig geschnittene Eigentumswohnungen mit 2 bis 5 Räumen zwischen 58 und 146 m².
Jede Wohnung verfügt über eine Terrasse mit möglichem Gartenanteil ODER über einen großen Balkon ODER über eine Dachterrasse.
Alle Wohnungen sind barrierefrei über Aufzüge zu erreichen.

Aktuell...

Mehr anzeigen

Dokumente

file_pdfWE 2.8.pdfangle_right

Anbieter der Immobilie

Partner

Hundertmark Immobilien

Talstraße 01, 07743 Jena

user

Herr Uwe Hundertmark

Dein Ansprechpartner

Anbieter-Website Anbieter-Profil Anbieter-Impressum

Online-ID: 2pruq52

Referenznummer: WE 2.8

Finde Angebote wie dieses

imageimageimage

Hier geht es zu unserem Impressum, den Allgemeinen Geschäftsbedingungen, den Hinweisen zum Datenschutz und nutzungsbasierter Online-Werbung.