

DVINN Projekt GmbH
Herr Andranik Tigranyan
051 ···
Nr. anzeigenPreise & Kosten
Provision für Käufer
5,95% inkl. gestz. MwST.
Lage
LAGE
Die Immobilie befindet sich in:
Ilsede – Ortsteil Groß Ilsede Zum Wasserturm
Die Lage bietet eine gute regionale Verkehrsanbindung innerhalb der Wirtschaftsregion:
Peine
Braunschweig
Hannover
Salzgitter
Hildesheim
Die Umgebung ist geprägt...
Büro-/Praxisfläche
Kategorie
Lager-Gebäude
Baujahr
2022
Bezug
01.07.2026
Geschoss
2. Geschoss
Energie & Heizung
Warum sehe ich diese Anzeige? – Du siehst diese Anzeige basierend auf Ihrer Navigation auf unserer Website und den Suchkriterien, die du verwendet hast.
Weitere Energiedaten
Haustyp
KfW 55
Energieträger
Elektro
Heizungsart
Fußbodenheizung, Luft-/Wasser-Wärmepumpe, Zentralheizung
Details
Objektbeschreibung
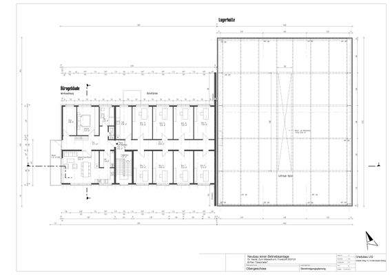
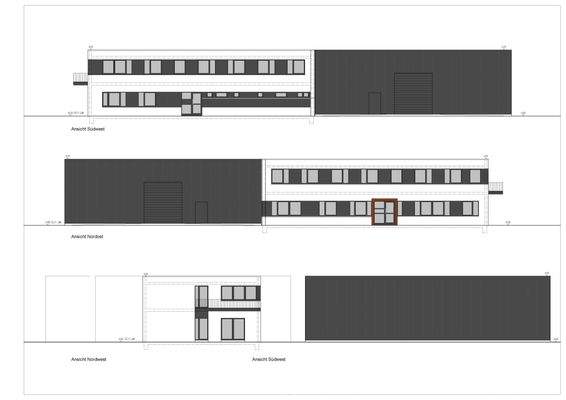
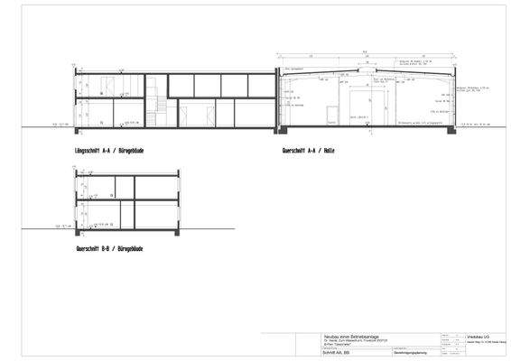
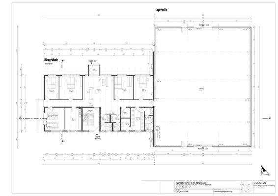
OBJEKTBESCHREIBUNG
Zum Verkauf steht eine moderne Gewerbeimmobilie (Neubau) bestehend aus einem Bürogebäude und einer Lagerhalle auf einem großzügigen Grundstück in Ilsede – Ortsteil Groß Ilsede.
Das Objekt eignet sich ideal für Unternehmen aus den Bereichen Logistik, Produktion, Handwerk, Lager oder Verwaltung...
Ausstattung
BAUWEISE / AUSSTATTUNG
Fundament: Sohlplatte / Punktfundamente
Bürogebäude mit Stahlbetondecke (22 cm)
Flachdach mit Abdichtungsbahn
Lagerhalle mit Stahlträgerkonstruktion
Dämmung über Paneelsysteme
Isolierung gegen Grundfeuchtigkeit...
Weitere Informationen
NUTZUNGSMÖGLICHKEITEN
Die Immobilie eignet sich ideal für:
Logistikunternehmen
Produktionsbetriebe
Handwerksbetriebe
Lager & Versand
Büro- und Verwaltungsstandorte
Gewerbliche...
Anbieter der Immobilie
DVINN Projekt GmbH
Hauptstr. 39e, 30916 Isernhagen F.B.

Online-ID: 2prtu55
Referenznummer: LAB032026
Finde Angebote wie dieses
Hier geht es zu unserem Impressum, den Allgemeinen Geschäftsbedingungen, den Hinweisen zum Datenschutz und nutzungsbasierter Online-Werbung.