
Holtmeyer Wohnen GmbH
Herr Jens Holtmeyer
054 ···
Nr. anzeigenPreise & Kosten
Warum sehe ich diese Anzeige? – Du siehst diese Anzeige basierend auf Ihrer Navigation auf unserer Website und den Suchkriterien, die du verwendet hast.
Lage
Die Wohnung befindet sich in ruhiger und gut angebundener Lage von Osnabrück-Atter.
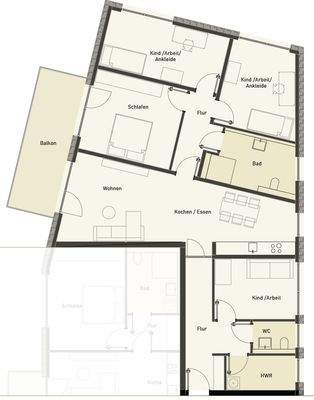
Die Wohnung
Bezug
01.07.2026
Wohnanlage
Energie & Heizung
Warum sehe ich diese Anzeige? – Du siehst diese Anzeige basierend auf Ihrer Navigation auf unserer Website und den Suchkriterien, die du verwendet hast.
Weitere Energiedaten
Energieträger
Elektro
Haustyp
KfW 40
Heizungsart
Fußbodenheizung, Luft-/Wasser-Wärmepumpe, Zentralheizung
Details
Objektbeschreibung
Modernes Neubauwohnen in ruhiger Lage von Osnabrück-Atter
In attraktiver Wohnlage im Osnabrücker Stadtteil Atter entstehen zwei moderne Mehrfamilienhäuser mit insgesamt 20 hochwertig ausgestatteten Mietwohnungen.
Die Wohnungen überzeugen durch eine zeitgemäße Architektur, barrierearme Grundrisse sowie eine...
Ausstattung
Diese attraktive Neubauwohnung überzeugt durch eine hochwertige Ausstattung und eine barrierearme Bauweise. Der Balkon ergänzt die Wohnung um einen angenehmen Außenbereich. Der durchdachte Grundriss, Echtholzparkett in den Wohnräumen sowie ein modernes Bad mit bodengleicher Dusche und ein Abstellraum für Waschmaschine und...
Weitere Informationen
Sonstiges
Info: Anzahl Etagen: 3
Wohnung 15 | Haus B | 5 Zimmer | ca. 136,02 m² | 2. Obergeschoss | Balkon | Warmmiete 1.904,28 €
Dokumente
Anbieter der Immobilie
Holtmeyer Wohnen GmbH
Lienener Straße 11, 49186 Bad Iburg
Online-ID: 2prrv52
Referenznummer: Haus B | 15
Finde Angebote wie dieses
Hier geht es zu unserem Impressum, den Allgemeinen Geschäftsbedingungen, den Hinweisen zum Datenschutz und nutzungsbasierter Online-Werbung.