
MBI Bormann Immobilien Vermittlungsgesellschaft mbH
Frau Jennifer Bormann
040 ···
Nr. anzeigenPreise & Kosten
Kaution
5625
Warum sehe ich diese Anzeige? – Du siehst diese Anzeige basierend auf Ihrer Navigation auf unserer Website und den Suchkriterien, die du verwendet hast.
Lage
Henstedt-Ulzburg gehört mit zu den gefragten Wohnlagen im nördlichen Umland von Hamburg und verbindet eine hohe Lebensqualität mit exzellenter Infrastruktur. In der näheren Umgebung finden sich diverse Einkaufsmöglichkeiten, darunter Supermärkte, Fachgeschäfte und das Einkaufszentrum City Center Ulzburg (CCU), welches eine...
Das Haus
Kategorie
Doppelhaushälfte
Baujahr
2024
Bezug
01.06.2026
Energie & Heizung
Warum sehe ich diese Anzeige? – Du siehst diese Anzeige basierend auf Ihrer Navigation auf unserer Website und den Suchkriterien, die du verwendet hast.
Energieausweistyp
Bedarfsausweis
Gebäudetyp
Wohngebäude
Baujahr laut Energieausweis
2024
Wesentliche Energieträger
Umweltwärme
Gültigkeit
03.02.2024 bis 02.02.2034
Effizienzklasse
A+
Endenergiebedarf
17,00 kWh/(m²·a)
Weitere Energiedaten
Heizungsart
Fußbodenheizung, Luft-/Wasser-Wärmepumpe, Zentralheizung
Details
Objektbeschreibung
Willkommen in dieser beeindruckenden Neubau-Doppelhaushälfte, welche mit einem Fokus auf Eleganz und Energieersparnis erbaut wurde.
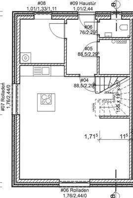
Mit einer Wohn-/Nutzfläche von etwa 140 m² bietet dieses Zuhause ausreichend Raum für die Bedürfnisse Ihrer Familie.
Verbrauchsabhängige Kosten sind vom Mieter direkt mit den...
Ausstattung
5,5 richtig gut geschnittene Zimmer, Bad mit Wanne und großer bodengleicher Dusche nebst zwei Waschtischen. Gäste-WC im EG, offene Küche mit Kochinsel (moderne & zeitlose Möblierung) zum Wohnzimmer mit Blick auf die Terrasse und in den Garten bieten Ihnen ein unvergleichliches Maß an Wohnqualität.
Das Haus zeichnet...
Weitere Informationen
Sonstiges
Besichtigungstermine sind ausschließlich nach Terminvereinbarung möglich!
Telefonische Erstauskünfte zum vorliegenden Vermietungsobjekt werden nicht erteilt - bitte fordern Sie daher zunächst unser Exposé unter Angabe
- Ihres vollständigen Vor- und Zunamens,
- Ihrer Meldeadresse sowie
-...
Anbieter der Immobilie
MBI Bormann Immobilien Vermittlungsgesellschaft mbH
Friedrich-Ebert-Straße 2 - 4, 22848 Norderstedt
Online-ID: 2prm756
Finde Angebote wie dieses
Hier geht es zu unserem Impressum, den Allgemeinen Geschäftsbedingungen, den Hinweisen zum Datenschutz und nutzungsbasierter Online-Werbung.