

Christian Schmidt Immobilien
Herr Christian Schmidt
072 ···
Nr. anzeigenPreise & Kosten
Provision für Käufer
Die vom Käufer zu zahlende Provision beträgt 2,00 % des beurkundeten Kaufpreises inkl. der gesetzlichen Mehrwertsteuer (derzeit 19 %). Die Provision ist verdient und fällig mit Abschluss des notariellen
Kaufvertrages.
Lage
Lagebeschreibung der Immobilie:
Die Immobilie befindet sich in einer zentralen Lage in 76646 Bruchsal und überzeugt durch ihre gut angebundene Wohnlage. Bruchsal liegt im nördlichen Landkreis Karlsruhe und verbindet urbanes Leben mit einer angenehmen, gewachsenen Infrastruktur. Die Stadt bietet eine hervorragende...
Die Wohnung
Wohnungslage
3. Geschoss
Bezug
sofort
Wohnanlage
Energie & Heizung
Warum sehe ich diese Anzeige? – Du siehst diese Anzeige basierend auf Ihrer Navigation auf unserer Website und den Suchkriterien, die du verwendet hast.
Energieausweistyp
Bedarfsausweis
Gebäudetyp
Wohngebäude
Baujahr laut Energieausweis
2020
Wesentliche Energieträger
Gas
Gültigkeit
29.11.2021 bis 28.11.2031
Endenergiebedarf
23,30 kWh/(m²·a)
Weitere Energiedaten
Energieträger
Gas
Haustyp
KfW 40
Heizungsart
Fußbodenheizung, Zentralheizung
Details
Objektbeschreibung
Beschreibung der Wohnung:
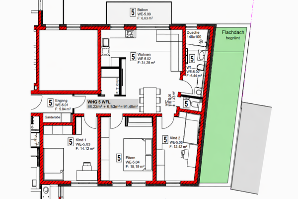
Diese moderne und hochwertig ausgestattete Wohnung überzeugt durch eine durchdachte Raumaufteilung, eine angenehme Wohnatmosphäre sowie eine energieeffiziente Bauweise. Mit einer Wohnfläche von ca. 91,49 m² inklusive anteiligem Balkon bietet sie ausreichend Platz für Paare, Familien oder auch...
Ausstattung
Ausstattung:
- 3-fach isolierverglaste Fenster, Farbe Anthrazit
- elektrische Rollläden an den Fenstern und Balkontüren
- Fußbodenheizung in der gesamten Wohnung
- hochwertige Fliesen in den Wohnräumen
- die Schlafzimmer mit edlem Laminatboden
- modernes Badezimmer mit ebenerdiger Dusche
- schöner...
Weitere Informationen
Sonstiges
Lassen Sie sich dieses Angebot nicht entgehen und vereinbaren Sie gleich einen Besichtigungstermin bei Herrn Christian Schmidt unter
+49 (0) 157/849 20 869 - es wird sich lohnen!
*************************************
Möchten Sie auch Ihre Immobilie verkaufen oder vermieten?
Wir beraten...
Anbieter der Immobilie
Christian Schmidt Immobilien
Jurastraße 64, 68753 Waghäusel

Online-ID: 2prkh55
Referenznummer: 5 / W5
Finde Angebote wie dieses
Hier geht es zu unserem Impressum, den Allgemeinen Geschäftsbedingungen, den Hinweisen zum Datenschutz und nutzungsbasierter Online-Werbung.