
Crozilla.com
PRIME REAL ESTATE d.o.o.
+38 ···
Nr. anzeigenPreise & Kosten
Provision für Käufer
Bitte beachte, das Angebot kann bei Vertragsabschluss die Zahlung einer Provision beinhalten. Weitere Informationen erhältst Du vom Anbieter.
Die Wohnung
Wohnungslage
1. Geschoss
Wohnanlage
Details
Objektbeschreibung
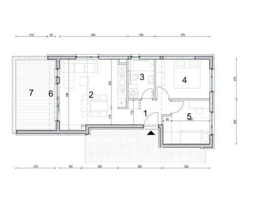
Gajac, Pag – moderan stan u novogradnji na odlicnoj lokaciji, samo 250 m od prekrasne plazeU ponudi je atraktivan i funkcionalan stan smješten u mirnom dijelu Gajca, na otoku Pagu, idealan za odmor, turisticki najam ili cjelogodišnje stanovanje. Nekretnina se nalazi na izvrsnoj lokaciji, svega 250 metara od uredene plaze i...
Weitere Informationen
Stichworte
1 Etagen
Anbieter der Immobilie
Crozilla.com
Nova cesta 60, 10000 ZAGREB
Online-ID: 2prkf56
Referenznummer: 19402371_3
Finde Angebote wie dieses
Hier geht es zu unserem Impressum, den Allgemeinen Geschäftsbedingungen, den Hinweisen zum Datenschutz und nutzungsbasierter Online-Werbung.