

IFC Immobiliengesellschaft mbH
Herr Paul-Ludwig Blümel
034 ···
Nr. anzeigenPreise & Kosten
Provision für Käufer
3,5 % zzgl. MwSt. zzgl. MwSt.
Das Haus
Kategorie
Einfamilienhaus
Baujahr
1905
Energie & Heizung
Warum sehe ich diese Anzeige? – Du siehst diese Anzeige basierend auf Ihrer Navigation auf unserer Website und den Suchkriterien, die du verwendet hast.
Energieausweistyp
Bedarfsausweis
Gebäudetyp
Wohngebäude
Baujahr laut Energieausweis
1905
Wesentliche Energieträger
OEL
Gültigkeit
bis 27.03.2036
Effizienzklasse
E
Endenergiebedarf
150,10 kWh/(m²·a)
Weitere Energiedaten
Energieträger
Öl
Details
Objektbeschreibung
Baujahr:
ca. 1905
Raumaufteilung:
Erdgeschoss:
Wohnzimmer, Esszimmer, Kinderzimmer, Küche, Bad,
Durchgangszimmer mit Zugang zum DG, Diele, Windfang
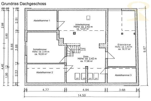
Dachgeschoss:
Schlafzimmer, Arbeitszimmer, Gästezimmer, 3 Abstellkammern, Diele
Wohnfläche:
ca. 173 m²
Grundstück:
ca. 650...
Ausstattung
Dach:
ca. 1996 - gedämmt, Bitumen-Schindeldach
Fassade:
ca. 1996 - teilweise gedämmt
ca. 1996 - geputzt, gestrichen
Fenster:
ca. 2008 - Kunststoff weiß teilweise mit Sprossen
DDR-Standard -Dachfenster
Türen:
originale Holztüren - Großteil mit Glaseinsatz
Haustür aus Kunststoff...
Weitere Informationen
Stichworte
Anzahl der Badezimmer: 1, 2 Etagen
Anbieter der Immobilie

Online-ID: 2prjf54
Referenznummer: 2059
Finde Angebote wie dieses
Hier geht es zu unserem Impressum, den Allgemeinen Geschäftsbedingungen, den Hinweisen zum Datenschutz und nutzungsbasierter Online-Werbung.