
Garant Immobilien Franken GmbH
Büro Nürnberg
091 ···
Nr. anzeigenPreise & Kosten
Provision für Käufer
4,76 % (inkl. MwSt.) inkl. MwSt.
Die Maklercourtage für den Käufer beträgt 4 % aus dem Kaufpreis zuzüglich der gesetzlichen MwSt., somit gesamt 4,76 %.
Lage
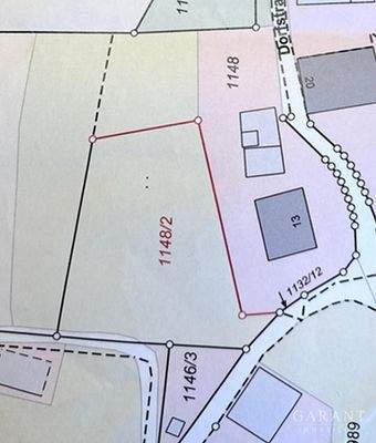
Das Grundstück befindet sich in Reichenschwand in einer besonders ruhigen und grünen Wohnlage. Die Umgebung ist geprägt von Natur, Erholung und einer angenehmen Wohnatmosphäre.
Gleichzeitig ist eine gute Verkehrsanbindung gewährleistet: Die Autobahn ist in ca. 10 Minuten erreichbar und ermöglicht eine schnelle...
Die Immobilie
Zu diesem Angebot wurden vom Anbieter keine weiteren Daten hinterlegt. Für weitere Informationen bitte den Anbieter kontaktieren.
Nach Informationen fragenDetails
Objektbeschreibung
Zum Verkauf steht ein attraktives Baugrundstück in idyllischer und ruhiger Lage von Reichenschwand. Mit einer großzügigen Fläche von ca. 1.494 qm bietet dieses Grundstück vielfältige Möglichkeiten zur Verwirklichung individueller Wohnträume oder renditestarker Bauprojekte.
Die rechteckige Grundstücksform ermöglicht...
Weitere Informationen
Sonstiges
Das Grundstück ist sofort verfügbar.
Anbieter der Immobilie
Online-ID: 2prhk55
Referenznummer: 249.001
Finde Angebote wie dieses
Hier geht es zu unserem Impressum, den Allgemeinen Geschäftsbedingungen, den Hinweisen zum Datenschutz und nutzungsbasierter Online-Werbung.