

Bien-Zenker GmbH - Markus Gerstung
Herr/Frau Markus Gerstung
036 ···
Nr. anzeigenPreise & Kosten
Provision für Käufer
nein
Lage
Isseroda befindet sich zwischen den Thüringer Städten Erfurt und Weimar südlich an der viel befahrenen Bundesstraße 7 und nördlich der Bundesautobahn 4. Die Gemarkung des Ortsteils liegt am Südrand des Thüringer Beckens, aber noch auf fruchtbaren Ackerböden. Südlich begrenzen die Anhöhen und Wälder bei Eichelborn und...
Das Haus
Kategorie
Einfamilienhaus
Energie & Heizung
Warum sehe ich diese Anzeige? – Du siehst diese Anzeige basierend auf Ihrer Navigation auf unserer Website und den Suchkriterien, die du verwendet hast.
Weitere Energiedaten
Haustyp
KfW 40
Heizungsart
Luft-/Wasser-Wärmepumpe
Details
Objektbeschreibung
EVOLUTION 122 hat viele unterschiedliche Gesichter. Ganz modern ausgeführt in einer Variante mit hohem Kniestock,
25° Satteldach und vielen Fensterflächen oder ebenfalls zeitgemäß interpretiert als Flachdach-Planungsvorschlag mit
einem Querhauselement und Terrassenbalkon. Es geht allerdings auch anders: mediterran mit...
Ausstattung
Es wurde ein Effizienzhaus 40 "Zur Ausstattung fertig" gerechnet, inkl. Bodenplatte, Grundinstallation, Architekt und Wohlfühl-Klima-Heizung+ mit kontrollierter Wohnraumbe- und Entlüftung.
Mit der Ausbauvariante "Zur Ausstattung fertig" können Sie Ihre handwerklichen Fähigkeiten voll ausspielen, wenn Sie die finalen...
Weitere Informationen
Sonstiges
Im angegebenen Preis für dieses projektierte Haus ist das Grundstück, welches Sie direkt von Dritten erwerben, bereits enthalten. Das Angebot ist unverbindlich und freibleibend, exklusive der Baunebenkosten wie z.B. Hausanschlüsse, Außenanlagen, Notar- und Gerichtskosten.
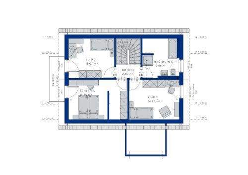
Abbildungen und Grundrisse zeigen...
Anbieter der Immobilie
Bien-Zenker GmbH - Markus Gerstung
Brunnhartshausen 30, 36466 Dermbach

Online-ID: 2prce57
Referenznummer: 12341-14333
Finde Angebote wie dieses
Hier geht es zu unserem Impressum, den Allgemeinen Geschäftsbedingungen, den Hinweisen zum Datenschutz und nutzungsbasierter Online-Werbung.