
Raiffeisen Immobilien Vermittlung GmbH
Herr Alexander Jaksch
+43 ···
Nr. anzeigenPreise & Kosten
Provision für Käufer
3% des Kaufpreises plus 20% USt.
Lage
Die Wohnung überzeugt durch ihre ausgezeichnete Anbindung: die U3-Station Ottakring sowie die S-Bahn (S45) sind fußläufig erreichbar. In wenigen Gehminuten erreicht man die Straßenbahnlinien 2 und 44, die eine schnelle Verbindung in andere Bezirke gewährleisten. Zusätzlich halten in der Nähe mehrere Buslinien - unter anderem...
Die Wohnung
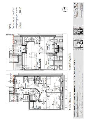
Wohnungslage
4. Geschoss (Dachgeschoss)
Wohnanlage
Energie & Heizung
Warum sehe ich diese Anzeige? – Du siehst diese Anzeige basierend auf Ihrer Navigation auf unserer Website und den Suchkriterien, die du verwendet hast.
Heizwärmebedarf (HWB)
35,38 kWh/(m²·a)
Gesamtenergieeffizienz (fGEE)
0,82
Weitere Energiedaten
Heizungsart
Etagenheizung, Luft-/Wasser-Wärmepumpe
Details
Objektbeschreibung
Exklusive Dachgeschoss-Maisonette im revitalisierten Altbau - hochwertiges Wohnen auf zwei Ebenen
In einem stilvoll revitalisierten Altbau in begehrter Lage des 16. Wiener Gemeindebezirks präsentiert sich diese außergewöhnliche Dachgeschoss-Maisonette als perfekte Kombination aus klassischem Altbauflair und modernster...
Weitere Informationen
Stichworte
Rolladen, Nutzfläche: 103,20 m², Anzahl der Schlafzimmer: 3, Anzahl der Badezimmer: 1, Anzahl der separaten WCs: 1, Anzahl Terrassen: 2, Kellerfläche: 2,01 m², Bundesland: Wien, 2 Etagen
Dokumente
Anbieter der Immobilie
Online-ID: 2praz57
Referenznummer: 0001011519
Finde Angebote wie dieses
Günstige Immobilienfinanzierung einfach online berechnen
Persönliches Angebot berechnenWarum sehe ich diese Werbung? – Du siehst diese Werbung basierend auf Deiner Navigation auf unserer Website und der von Dir verwendeten Suchkriterien.
Diese Werbung wird bezahlt von durchblicker
Werbung melden
Hier geht es zu unserem Impressum, den Allgemeinen Geschäftsbedingungen, den Hinweisen zum Datenschutz und nutzungsbasierter Online-Werbung.