
Fahnster Immobilien GmbH
072 ···
Nr. anzeigenPreise & Kosten
Provision für Käufer
3,57 % inkl. MwSt.
Lage
Die Dachgeschosswohnung befindet sich in ruhiger und gepflegter Wohnlage von Rheinmünster, im Ortsteil Greffern, einer charmanten Gemeinde im Landkreis Rastatt. Umgeben von Natur, Wiesen und Feldern bietet die Lage ein hohes Maß an Lebensqualität und Erholung - ideal für alle, die die Nähe zur Natur schätzen und dennoch gut...
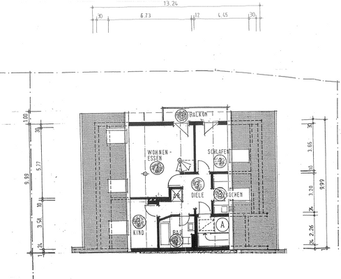
Die Wohnung
Wohnungslage
Dachgeschoss
Wohnanlage
Energie & Heizung
Warum sehe ich diese Anzeige? – Du siehst diese Anzeige basierend auf Ihrer Navigation auf unserer Website und den Suchkriterien, die du verwendet hast.
Energieausweistyp
Verbrauchsausweis
Gebäudetyp
Wohngebäude
Baujahr laut Energieausweis
1991
Wesentliche Energieträger
Öl
Gültigkeit
24.05.2023 bis 23.05.2033
Effizienzklasse
C
Endenergieverbrauch
88,00 kWh/(m²·a)
Weitere Energiedaten
Energieträger
Öl
Heizungsart
offener Kamin, Zentralheizung
Details
Objektbeschreibung
Diese charmante Dachgeschosswohnung in ruhiger Wohnlage von Rheinmünster überzeugt auf Anhieb durch ihre helle, freundliche Atmosphäre und eine durchdachte Raumaufteilung. Zahlreiche Fenster durchfluten die Räume mit Tageslicht und schaffen ein offenes, angenehmes Wohngefühl.
Bereits beim Betreten der Wohnung empfängt...
Ausstattung
- Wohnlage: Dachgeschosswohnung in einem gepflegten Dreifamilienhaus
- Energieeffizienz: Haus mit Solarthermie zur Unterstützung der Heizung und Warmwasseraufbereitung, Holzofen und Balkonkraftwerk
- Niedrige Energiekosten
- Wohn-Esszimmer: Hochwertiges Korkparkett für angenehmes Wohngefühl und gemütlicher Holzofen...
Weitere Informationen
Stichworte
Stellplatz vorhanden, Anzahl der Schlafzimmer: 2, Anzahl der Badezimmer: 1, Anzahl Balkone: 1, Bundesland: Baden-Württemberg, modernisiert: 2019
Anbieter der Immobilie
Online-ID: 2prac54
Referenznummer: FAIM-2604
Finde Angebote wie dieses
Hier geht es zu unserem Impressum, den Allgemeinen Geschäftsbedingungen, den Hinweisen zum Datenschutz und nutzungsbasierter Online-Werbung.