
allkauf haus GmbH
Herr Vitali Stettinger
+49 ···
Nr. anzeigenPreise & Kosten
Provision für Käufer
provisionsfrei
Lage
Das Reihenendhaus befindet sich in einem ruhigen Wohngebiet in Aschaffenburg Damm. Die Infrastruktur ist hervorragend: Ein Bahnhof, eine Grundschule, ein Kindergarten sowie ein Spielplatz sind in unmittelbarer Nähe und bieten beste Voraussetzungen für Familien mit Kindern. Die Wohngegend selbst besticht durch ihre angenehme...
Das Haus
Kategorie
Reihenendhaus
Baujahr
2027
Energie & Heizung
Warum sehe ich diese Anzeige? – Du siehst diese Anzeige basierend auf Ihrer Navigation auf unserer Website und den Suchkriterien, die du verwendet hast.
Weitere Energiedaten
Haustyp
KfW 40
Heizungsart
Fußbodenheizung, Luft-/Wasser-Wärmepumpe
Details
Objektbeschreibung
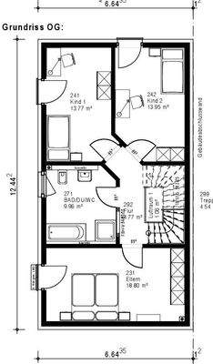
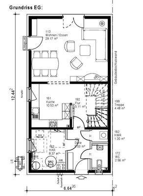
Dieses projektiert geplante Reihenendhaus in Aschaffenburg Damm erfüllt mit 6 Zimmern auf 189 m² Wohnfläche alle Wünsche und Vorstellungen anspruchsvoller Bauherren. Auf einem großzügigen Grundstück von 407 m² verteilt sich das Haus über drei Etagen mit fünf Schlafzimmern und einem stilvoll ausgestatteten Badezimmer, das...
Ausstattung
Das Haus überzeugt durch hochwertige Bodenbeläge aus Fliesen und Laminat. Fliesen bieten Ihnen eine langlebige, pflegeleichte und ästhetisch ansprechende Oberfläche, ideal für Feuchträume und stark frequentierte Bereiche. Laminat hingegen bringt Wärme und Gemütlichkeit in die Wohnräume und ist leicht zu reinigen. Beheizt wird...
Weitere Informationen
Sonstiges
allkauf steht für maximale Sicherheit, kurze Lieferzeiten und garantierte Fertigstellung. Mit dem im Preis enthaltenen Dienstleistungspaket Active Time für Ambitionierte übernehmen wir für Sie Estrich, Sanitär, Heizung und Elektroinstallation, während Sie den Trockenbau selbst gestalten können - eine ideale...
Anbieter der Immobilie
allkauf haus GmbH
Ludwig Erhard Str. 2, 68162 Bad Vilbel
Online-ID: 2pr9g54
Referenznummer: 3019-13-kw11-77707 BY AT
Finde Angebote wie dieses
Hier geht es zu unserem Impressum, den Allgemeinen Geschäftsbedingungen, den Hinweisen zum Datenschutz und nutzungsbasierter Online-Werbung.