
ohne-makler.net - Immobilien selbst vermarkten
Privat vom Eigentümer
Kontaktiere den Anbieter schriftlich, es ist keine Telefonnummer hinterlegt.
Preise & Kosten
Kaution
2.250,00
Warum sehe ich diese Anzeige? – Du siehst diese Anzeige basierend auf Ihrer Navigation auf unserer Website und den Suchkriterien, die du verwendet hast.
Lage
Die Immobilie befindet sich in angenehmer Wohnlage im Stadtteil Hannover-Misburg. Einkaufsmöglichkeiten des täglichen Bedarfs sind fußläufig erreichbar und sorgen für eine komfortable Nahversorgung.
Die Anbindung an den öffentlichen Personennahverkehr ist hervorragend: Die Straßenbahnhaltestelle der Linie 7 sowie eine...
Die Wohnung
Wohnungslage
2. Geschoss
Bezug
15.04.2026
Wohnanlage
Energie & Heizung
Warum sehe ich diese Anzeige? – Du siehst diese Anzeige basierend auf Ihrer Navigation auf unserer Website und den Suchkriterien, die du verwendet hast.
Energieausweistyp
Verbrauchsausweis
Gebäudetyp
Wohngebäude
Endenergieverbrauch
121,00 kWh/(m²·a) - Warmwasser enthalten
Weitere Energiedaten
Energieträger
Öl
Heizungsart
Zentralheizung
Details
Objektbeschreibung
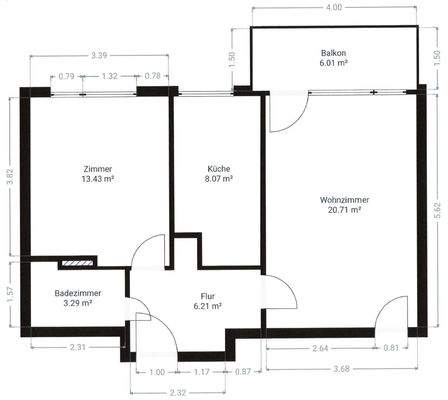
Im 2. Obergeschoss erwartet Sie eine moderne 2-Zimmer-Wohnung mit 54,74 m² Wohnfläche im Erstbezug nach Kernsanierung - hier wurde alles neu gemacht!
Die Wohnung präsentiert sich in hochwertigem, neuwertigem Zustand und bietet Ihnen den Komfort einer Neubau-Wohnung. Der Balkon erweitert Ihren Wohnraum nach draußen und...
Ausstattung
Balkon, Keller, Duschbad, Parkett, Fliesen
Bemerkungen:
- Erstbezug nach Sanierung
- 2 Zimmer
- 54,74 qm Wohnfläche?
- helle Wohnräume mit hochwertigem Echtholz Eichenparkett
- großzügige Zimmer
- neue Zimmertüren?
- neue Elektrik
- neue Heizkörper
- großes Wohnzimmer
- alle Räume hell...
Preisinformation
Nettokaltmiete: 750,00 EUR
Weitere Informationen
Sonstiges
Heizungsart: Zentralheizung
Energieträger: Öl
Bezugsfrei ab sofort.
Kaltmiete 750,-- €. Nebenkosten inkl. Heizkosten 200,-- €
Kaution 3 Monatskaltmieten?
Bei Interesse schreiben Sie uns bitte?
1) Ihren Namen,?
2) Ihre Telefonnummer,
3) Was Sie beruflich machen,?
4)...
Anbieter der Immobilie
ohne-makler.net - Immobilien selbst vermarkten
Humboldtstr. 25 A, 21509 Glinde
Privat vom Eigentümer
Dein Ansprechpartner
Kontaktiere den Anbieter schriftlich, es ist keine Telefonnummer hinterlegt.
Online-ID: 2pr7556
Referenznummer: 442270
Finde Angebote wie dieses
Hier geht es zu unserem Impressum, den Allgemeinen Geschäftsbedingungen, den Hinweisen zum Datenschutz und nutzungsbasierter Online-Werbung.