OPTIN Immobilien GmbH

Herr David Breitwieser

VIEVIENNE - Altbaucharme pur: 3 Zimmer mit Loggia und großzügigem Wohngefühl

€ 510.000
Kaufpreis
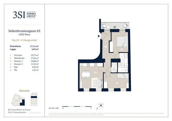
61,97 m²
Wohnfläche ca.
3
Zimmer
Finanzierung berechnen mit durchblicker

Der Anbieter dieses Objekts hat gegenüber der AVIV Germany GmbH als Betreiber dieses Online-Marktplatzes erklärt, nicht als Unternehmer im Sinne des § 1 KSchG zu handeln. Die im Verbraucherschutzrecht der Union verankerten Verbraucherrechte (insbesondere Informationspflichten und Rücktritts- bzw. Widerrufsrechte) finden auf den Vertrag zwischen dem Anbieter des Objekts und Ihnen (dem Interessenten) keine Anwendung.

Gewerblicher Anbieter

Der Anbieter dieses Objekts hat gegenüber der AVIV Germany GmbH als Betreiber dieses Online-Marktplatzes erklärt, als Unternehmer im Sinne des § 1 KSchG zu handeln.

AdresseStraße nicht freigegeben
1050 Wien 
(Margareten)
Auf Karte ansehen

Preise & Kosten

Kaufpreis € 510.000

Provision für Käufer

3% zuzüglich Ust.

Lage

Das Wohnprojekt VIVIENNE überzeugt durch seine zentrale und dennoch ruhige Lage im beliebten 5. Wiener Bezirk Margareten. In nur wenigen Gehminuten erreichen Sie wichtige Verkehrsanbindungen, wie die Buslinien 12A und 14A sowie die U-Bahn-Station Pilgramgasse (U4), die Ihnen schnelle Verbindungen in die gesamte Stadt...

Mehr anzeigen

Die Wohnung

Bezug

sofort

  • Loggia
  • Böden: Fliesenboden, Parkett
  • Zustand: Erstbezug
  • Anschlüsse: Kabelanschluss

Wohnanlage

  • Baujahr: 2025
  • Zustand: Altbau (bis 1945)
  • Personenaufzug

Energie & Heizung

Heizwärmebedarf (HWB)

C

96,00 kWh/(m²·a)

Gesamtenergieeffizienz (fGEE)

C

1,42

Details

Objektbeschreibung

VIVIENNE positioniert sich inmitten von Margareten und repräsentiert stilvolles Wohnen und reine Lebensfreude. Der wiederbelebte Wiener Altbau in der Siebenbrunnengasse 65 im Herzen des 5. Bezirks zeigt sich zeitlos, elegant und voller Elan. Seine Bauweise ist ebenso beeindruckend und lebendig wie die von Wien. Die Lage...

Mehr anzeigen

Weitere Informationen

Sonstiges
-Fernwärme
-Fußbodenheizung
-Hochwertiges Eichenparkett
-3-Scheiben-Isolierverglasung
-Handtuchheizkörper in den Bädern
-Digitale Raumthermostate
-Markensanitärausstattung
-Klimaanlagen (Dachgeschoß)
-Elektrischer Sonnenschutz (Dachgeschoß)
-Smart-Home-System...

Mehr anzeigen

Anbieter der Immobilie

Partner

OPTIN Immobilien GmbH

im Durchschnitt  3,80  Sterne
(bei 8 Bewertungen)

Goldschmiedgasse 2, 1010 Wien

user

Herr David Breitwieser

Dein Ansprechpartner

Anbieter-Profil Anbieter-Impressum

Online-ID: 2pr645a

Referenznummer: OBGC202511281731562893eedb659a0

Finde Angebote wie dieses

imageimageimage

Günstige Immobilienfinanzierung einfach online berechnen

Persönliches Angebot berechnen

Hier geht es zu unserem Impressum, den Allgemeinen Geschäftsbedingungen, den Hinweisen zum Datenschutz und nutzungsbasierter Online-Werbung.