WOLF & SOHN Immobilien GmbH

Herr Amir Oliver Tarab

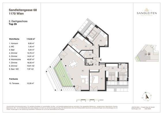
Familien-Penthouse der Extraklasse: Seltene 4-Zimmer-Dachgeschosswohnung mit Terrasse & Weitblick || Sandleitengasse 68

€ 1.390.000
Kaufpreis
119,50 m²
Wohnfläche ca.
4
Zimmer
Finanzierung berechnen mit durchblicker

Der Anbieter dieses Objekts hat gegenüber der AVIV Germany GmbH als Betreiber dieses Online-Marktplatzes erklärt, nicht als Unternehmer im Sinne des § 1 KSchG zu handeln. Die im Verbraucherschutzrecht der Union verankerten Verbraucherrechte (insbesondere Informationspflichten und Rücktritts- bzw. Widerrufsrechte) finden auf den Vertrag zwischen dem Anbieter des Objekts und Ihnen (dem Interessenten) keine Anwendung.

Gewerblicher Anbieter

Der Anbieter dieses Objekts hat gegenüber der AVIV Germany GmbH als Betreiber dieses Online-Marktplatzes erklärt, als Unternehmer im Sinne des § 1 KSchG zu handeln.

AdresseStraße nicht freigegeben
1170 Wien,Hernals 
Auf Karte ansehen

Preise & Kosten

Kaufpreis € 1.390.000

Provision für Käufer

3% des Kaufpreises zzgl. 20% USt.

Lage

Die Sandleitengasse 68 liegt im lebendigen Hernals, einem der grünsten und beliebtesten Bezirke Wiens. Die Lage verbindet das Beste aus zwei Welten: urbane Infrastruktur auf der einen, Ruhe und Grün auf der anderen Seite.

Öffentliche Anbindung: U-Bahn (U6), Straßenbahn & Bus direkt vor der Tür

Umfangreiches...

Mehr anzeigen

Die Wohnung

Wohnungslage

6. Geschoss

Bezug

2026

  • Bad mit Dusche, Gäste-WC
  • Terrasse
  • offene Küche
  • Böden: Fliesenboden, Parkett
  • Zustand: Erstbezug
  • voll klimatisiert
  • Weitere Räume: Abstellraum

Wohnanlage

  • Baujahr: 2026
  • Zustand: Neubau
  • Personenaufzug

Energie & Heizung

Heizwärmebedarf (HWB)

A

24,90 kWh/(m²·a)

Gesamtenergieeffizienz (fGEE)

A

0,72

Weitere Energiedaten

Heizungsart

Fußbodenheizung, Luft-/Wasser-Wärmepumpe

Details

Objektbeschreibung

Sandleitengasse 68 - wo Hernals von seiner schönsten Seite wohnt

Im aufstrebenden 17. Wiener Gemeindebezirk entsteht mit der Sandleitengasse 68 ein Neubauprojekt, das höchste Ansprüche an Wohnqualität, Ausstattung und Nachhaltigkeit erfüllt. 29 exklusive Eigentumswohnungen verteilen sich auf fünf Ober- und zwei...

Mehr anzeigen

Weitere Informationen

Stichworte
Süd-West-Balkon/Terrasse, Fahrradraum, Anzahl der Badezimmer: 2, Anzahl der separaten WCs: 3, Anzahl Terrassen: 1, Balkon-Terrassen-Fläche: 12,30 m², Bundesland: Wien, 7 Etagen

Anbieter der Immobilie

Partner

WOLF & SOHN Immobilien GmbH

Herbeckstrasse 57/4, 1180 WIEN

user

Herr Amir Oliver Tarab

Dein Ansprechpartner

Anbieter-Website Anbieter-Profil Anbieter-Impressum

Online-ID: 2pr4x56

Referenznummer: OBGC20260126102224272eec20dfb4e

Finde Angebote wie dieses

imageimageimage

Günstige Immobilienfinanzierung einfach online berechnen

Persönliches Angebot berechnen

Hier geht es zu unserem Impressum, den Allgemeinen Geschäftsbedingungen, den Hinweisen zum Datenschutz und nutzungsbasierter Online-Werbung.