
Brinkmeier & Liebelt GmbH & Co. KG
Frau Maren Brinkmeier
+49 ···
Nr. anzeigenPreise & Kosten
Provision für Mieter
Die zu zahlende Maklerprovision beträgt für den Mieter eine Monatsmiete netto kalt zzgl. der gesetzlichen MwSt. verdient und zahlbar bei Mietvertragsabschluss.
Warum sehe ich diese Anzeige? – Du siehst diese Anzeige basierend auf Ihrer Navigation auf unserer Website und den Suchkriterien, die du verwendet hast.
Lage
. direkt im Herzen der Stadt Schwarzenbek in der Haupteinkaufsstraße
. Sie bietet ihren ca. 17.000 Einwohnern eine hervorragende Infrastruktur mit attraktiven Boutiquen, Restaurants, Supermärkten und allen Annehmlichkeiten urbanen Lebens
. Kindergärten, Grundschulen und weiterführende Schulen wie die...
Die Ladenfläche
Kategorie
Verkaufsfläche
Baujahr
1901
Bezug
ab 01. Oktober 2026 oder nach Vereinbarung
Energie & Heizung
Warum sehe ich diese Anzeige? – Du siehst diese Anzeige basierend auf Ihrer Navigation auf unserer Website und den Suchkriterien, die du verwendet hast.
Wärme
Strom
Energieausweistyp
Verbrauchsausweis
Gebäudetyp
Nicht-Wohngebäude
Baujahr laut Energieausweis
1901
Wesentliche Energieträger
Gas
Gültigkeit
seit 19.03.2026
Endenergieverbrauch (Wärme)
77,10 kWh/(m²·a) - Warmwasser enthalten
Endenergieverbrauch (Strom)
29,60 kWh/(m²·a) - Warmwasser enthalten
Weitere Energiedaten
Energieträger
Gas
Heizungsart
Zentralheizung
Details
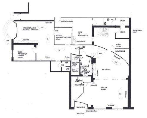
Objektbeschreibung
. diese attraktive Gewerbeeinheit befindet sich im Erdgeschoss eines sehr gepflegten Geschäftshauses in bester zentraler City- Lage
. die letzte jahrzehnte lange Nutzung erfolgte durch eine Apotheke
. hervorragende Sichtbarkeit durch zwei separate Eingänge - einer davon komplett barrierefrei
. die großen...
Weitere Informationen
Provision
Die zu zahlende Maklerprovision beträgt für den Mieter eine Monatsmiete netto kalt zzgl. der gesetzlichen MwSt. verdient und zahlbar bei Mietvertragsabschluss.
Sonstiges
Diese attraktive Gewerbeeinheit zeichnet sich durch die bevorzugter Innenstadtlage sowie die Großzügigkeit in der Raumaufteilung aus...
Anbieter der Immobilie
Brinkmeier & Liebelt GmbH & Co. KG
Lauenburger Str. 10, 21493 Schwarzenbek
Online-ID: 2pr3p52
Referenznummer: 1519
Finde Angebote wie dieses
Hier geht es zu unserem Impressum, den Allgemeinen Geschäftsbedingungen, den Hinweisen zum Datenschutz und nutzungsbasierter Online-Werbung.