
allkauf haus GmbH
Herr Stefan May
+49 ···
Nr. anzeigenPreise & Kosten
Provision für Käufer
provisionsfrei
Lage
Die Doppelhaushälfte befindet sich in einer beliebten Siedlung in Burgbernheim, einem charmanten Ort mit guter Infrastruktur. Einkaufsmöglichkeiten, Schulen und Ärzte sind in der Nähe und bequem erreichbar. Die Umgebung bietet vielfältige Freizeitmöglichkeiten, von Spaziergängen in der Natur bis hin zu sportlichen Aktivitäten...
Das Haus
Kategorie
Doppelhaushälfte
Bezug
2027
Energie & Heizung
Warum sehe ich diese Anzeige? – Du siehst diese Anzeige basierend auf Ihrer Navigation auf unserer Website und den Suchkriterien, die du verwendet hast.
Weitere Energiedaten
Haustyp
KfW 55
Heizungsart
Fußbodenheizung, Luft-/Wasser-Wärmepumpe
Details
Objektbeschreibung
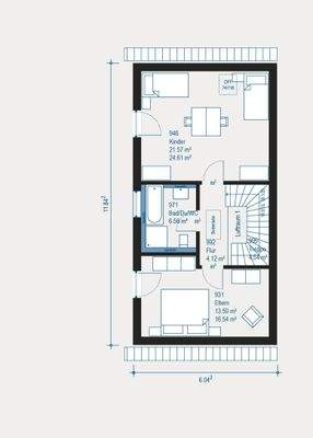
Diese projektiert geplante Doppelhaushälfte in Burgbernheim bietet Ihnen die Möglichkeit, Ihr zukünftiges Zuhause ganz nach Ihren individuellen Wünschen und Vorstellungen zu gestalten. Auf einer Wohnfläche von 113,64 m² verteilen sich 3 Zimmer auf 2 Etagen, mit 2 gemütlichen Schlafzimmern, einem modernen Badezimmer sowie...
Ausstattung
Die Ausstattung dieser Doppelhaushälfte ist gehoben und setzt auf moderne, energieeffiziente Technik. Beheizt wird das Haus umweltfreundlich und kostensparend durch eine Luft-Wasser-Wärmepumpe, die für ein angenehmes Raumklima sorgt und den KfW55 Energiestandard erfüllt. Zu den baulichen Highlights gehören dreifach verglaste...
Weitere Informationen
Sonstiges
allkauf steht für maximale Sicherheit, kurze Lieferzeiten und garantierte Fertigstellung Ihres Traumhauses. Mit über 35 Jahren Erfahrung im Fertighausbau bietet allkauf Ihnen höchste Qualitätsstandards, Nachhaltigkeit und flexible Ausbaukonzepte. Unsere Dienstleistungspakete - VIELBESCHÄFTIGTE, AMBITIONIERTE und...
Anbieter der Immobilie
allkauf haus GmbH
Ludwig Erhard Str. 2, 68162 Bad Vilbel
Online-ID: 2pqqx53
Referenznummer: 3748-325-kw13-79970
Finde Angebote wie dieses
Hier geht es zu unserem Impressum, den Allgemeinen Geschäftsbedingungen, den Hinweisen zum Datenschutz und nutzungsbasierter Online-Werbung.