

Leonhard Immobilien e. K.
Herr Harald Leonhard
+49 ···
Nr. anzeigenPreise & Kosten
Provision für Käufer
2,98 % inkl. MwSt. inkl. MwSt.
Lage
Henstedt-Ulzburg ist als lebendige Gemeinde im Hamburger Umland bekannt und beliebt. Die Kombination aus grüner Umgebung und einer erstklassigen Infrastruktur macht den Ort besonders für Pendler und Familien attraktiv. Ob Schulen, Ärzte oder vielfältige Einkaufsmöglichkeiten, hier ist alles in kurzer Zeit...
Das Haus
Kategorie
Reihenmittelhaus
Baujahr
1961
Bezug
nach Vereinbarung
Energie & Heizung
Warum sehe ich diese Anzeige? – Du siehst diese Anzeige basierend auf Ihrer Navigation auf unserer Website und den Suchkriterien, die du verwendet hast.
Energieausweistyp
Bedarfsausweis
Gebäudetyp
Wohngebäude
Baujahr laut Energieausweis
1961
Wesentliche Energieträger
GAS
Gültigkeit
bis 25.02.2036
Effizienzklasse
E
Endenergiebedarf
135,03 kWh/(m²·a)
Weitere Energiedaten
Energieträger
Gas
Heizungsart
Zentralheizung
Details
Objektbeschreibung
Ehrliche Substanz für Macher und Investoren. Dieses Reihenmittelhaus aus dem Jahr 1961 bietet genau das, was Handwerker oder Kapitalanleger suchen. Es ist eine solide Basis ohne versteckte Mängel oder teure Vor-Sanierungen, die vielleicht gar nicht dem eigenen Geschmack entsprechen. Da das Haus lange Zeit pragmatisch genutzt...
Ausstattung
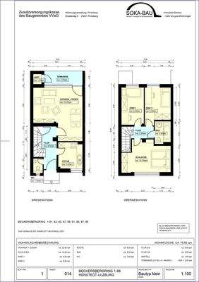
Die Ausstattung im Haus ist einfach gehalten und war durch die letzte Nutzung zweckmäßig und robust. Das Badezimmer ist als Duschbad ausgeführt und wird durch ein separates Gäste-WC ergänzt. In den Wohnräumen wurde Laminat als Bodenbelag verlegt.
Ein großer Pluspunkt für den Alltag ist die zum Objekt gehörende Garage...
Preisinformation
1 Garagenstellplatz
Weitere Informationen
Stichworte
West-Balkon/Terrasse, Anzahl der Schlafzimmer: 3, Anzahl der Badezimmer: 1, Anzahl der separaten WCs: 2, Anzahl Terrassen: 1
Anbieter der Immobilie

Online-ID: 2pqmv54
Referenznummer: 24312
Finde Angebote wie dieses
Hier geht es zu unserem Impressum, den Allgemeinen Geschäftsbedingungen, den Hinweisen zum Datenschutz und nutzungsbasierter Online-Werbung.