
allkauf haus GmbH
Herr Alexander Kruhl
+49 ···
Nr. anzeigenPreise & Kosten
Provision für Käufer
Bitte beachte, das Angebot kann bei Vertragsabschluss die Zahlung einer Provision beinhalten. Weitere Informationen erhältst Du vom Anbieter.
Lage
Eggolsheim zeichnet sich durch eine ruhige Wohngegend mit exzellenter Infrastruktur aus. Schulen, Einkaufsmöglichkeiten und Freizeitangebote sind bequem erreichbar. Hier genießen Sie die Vorzüge des Landlebens, ohne auf die Nähe zur Stadt und deren vielfältige Freizeitmöglichkeiten verzichten zu müssen.
Das Haus
Kategorie
Doppelhaushälfte
Energie & Heizung
Warum sehe ich diese Anzeige? – Du siehst diese Anzeige basierend auf Ihrer Navigation auf unserer Website und den Suchkriterien, die du verwendet hast.
Weitere Energiedaten
Haustyp
KfW 55
Heizungsart
Fußbodenheizung, Luft-/Wasser-Wärmepumpe
Details
Objektbeschreibung
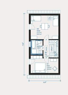
Lernen Sie die vielfältigen Möglichkeiten Ihrer neuen Doppelhaushälfte in Eggolsheim kennen! Diese durchdacht geplante Immobilie offeriert Ihnen auf 113,64 m² Wohnfläche mit drei Zimmern ausreichend Raum, um Ihre persönlichen Wohnträume zu verwirklichen. Das Haus erstreckt sich über zwei Etagen und wird ganz nach Ihren...
Ausstattung
- Zwei Stockwerke ermöglichen flexible Nutzungskonzepte
- 2 Schlafzimmer sowie 1 Badezimmer für besten Wohnkomfort
- Wärmepumpe sorgt für nachhaltige und effiziente Beheizung
- Erfüllung des KFW55-Standards für niedrige Energiekosten
- Fußbodenheizung garantiert behagliche Wärme
- Dreifach...
Weitere Informationen
Sonstiges
allkauf steht für maximale Sicherheit, kurze Lieferzeiten und garantierte Fertigstellung.
Wir bieten Ihnen kurze Lieferzeiten, eine Liefergarantie, absolute Sicherheit, Festpreis- und Fertigstellungsgarantie.
Zu jedem Haus gehören:
- Energieeffizienzwand
- Echtholztreppe
-...
Anbieter der Immobilie
allkauf haus GmbH
Ludwig Erhard Str. 2, 68162 Bad Vilbel
Online-ID: 2pqjt54
Referenznummer: 3347-325-kw13-80402
Finde Angebote wie dieses
Hier geht es zu unserem Impressum, den Allgemeinen Geschäftsbedingungen, den Hinweisen zum Datenschutz und nutzungsbasierter Online-Werbung.