

Gründer Immobilien
Herr Ralf Gründer
049 ···
Nr. anzeigenPreise & Kosten
Provision für Käufer
provisionsfrei
Lage
Willkommen in Herzlake, einem charmanten Ort, der seinen Bewohnern und Besuchern eine perfekte Mischung aus ländlicher Idylle und modernem Lebensstil bietet. Gelegen in der Region Emsland in Niedersachsen, ist Herzlake nicht nur für seine malerische Landschaft bekannt, sondern auch für seine lebendige Gemeinschaft und seine...
Das Haus
Kategorie
Einfamilienhaus
Baujahr
2025
Bezug
nach Vereinbarung
Energie & Heizung
Warum sehe ich diese Anzeige? – Du siehst diese Anzeige basierend auf Ihrer Navigation auf unserer Website und den Suchkriterien, die du verwendet hast.
Weitere Energiedaten
Heizungsart
Luft-/Wasser-Wärmepumpe
Details
Objektbeschreibung
Ihr Traumhaus am See - Exklusives Wohnen in Herzlake
Willkommen in Ihrem neuen Zuhause! Dieses hochmoderne Einfamilienhaus mit Garage liegt in einer privilegierten Lage direkt am Ufer des Sees in Herzlake. Hier verschmelzen Ruhe, Natur und exklusives Wohnen zu einer perfekten Einheit, während Sie dennoch die...
Ausstattung
Exklusive Ausstattungsmerkmale:
Sicherheit & Komfort: Hochwertige, einbruchssichere Kunststofffenster in stilvollem Schwarz mit dreifacher Isolierverglasung und Raffstores bieten optimalen Schutz und höchsten Wohnkomfort.
Smart Home-Technologie: Die moderne Elektroinstallation inklusive Smarthome-System...
Preisinformation
2 Garagenstellplätze
Weitere Informationen
Sonstiges
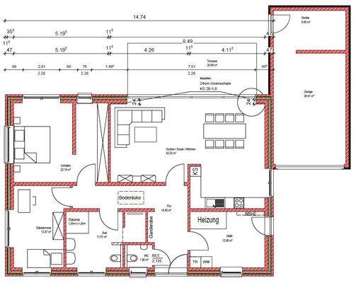
Wohnflächenaufteilung:
Erdgeschoss:
Flur ca. 14,30 qm
Wohnen / Essen ca. 41,75 qm
Schlafen/Ankleide ca. 21,90 qm
Gästezimmer ca. 12,64 qm
Bad ca. 11,19 qm
Gäste-WC ca. 1,79 qm
HWR ca. 12,44 qm
Terrasse ca. 9,90 qm (50%)
Energiepass
Energieausweis wird bei Besichtigung...
Anbieter der Immobilie
Gründer Immobilien
Haupstraße 97, 26892 Dörpen

Online-ID: 2pqjh55
Referenznummer: 8309
Finde Angebote wie dieses
Hier geht es zu unserem Impressum, den Allgemeinen Geschäftsbedingungen, den Hinweisen zum Datenschutz und nutzungsbasierter Online-Werbung.