

VALOGIS Immobilien AG
Herr Fabian Zerling
+49 ···
Nr. anzeigenPreise & Kosten
Verhandlungsbasis
Provision für Käufer
4,76 %
Lage
Gefragte Lage im Herzen von Solingen - Neubau mit exzellenter Vermietbarkeit
Der Neubau befindet sich in einer urban geprägten und zugleich gewachsenen Wohnlage von Solingen mit hervorragender Infrastruktur im direkten Umfeld. Innerhalb eines Radius von rund zwei Kilometern profitieren zukünftige Mieter von einer...
Das Grundstück
Details
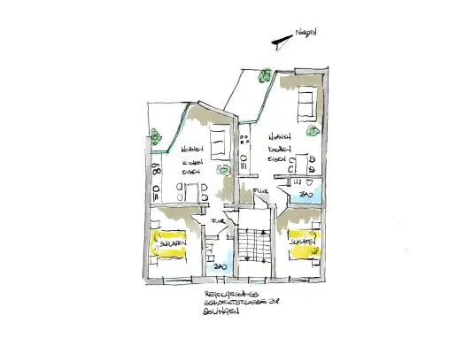
Objektbeschreibung
Diese Baulücke bietet attraktive Investitionsmöglichkeiten für Kapitalanleger. Das großzügige Platzangebot und die zentrale Lage mit gleichzeitig ruhigem, grünem Wohnumfeld schaffen ein begehrtes Wohnumfeld, das sowohl langfristige Mieteinnahmen als auch Wertsteigerungspotenzial verspricht. Die kurze Entfernung zu wichtigen...
Ausstattung
Attraktive Baulücke für Kapitalanleger: zentrale, ruhige Lage, großzügiges Grundstück, starke Mietnachfrage, gute Anbindung und hohes Wertsteigerungspotenzial.
Weitere Informationen
Provision
4,76 %
Sonstiges
Parkmöglichkeiten befinden sich in den umliegenden Straßen.
Anbieter der Immobilie

Online-ID: 2pqg853
Referenznummer: AP465
Finde Angebote wie dieses
Hier geht es zu unserem Impressum, den Allgemeinen Geschäftsbedingungen, den Hinweisen zum Datenschutz und nutzungsbasierter Online-Werbung.