
TM Immobilien Paderborn
Herr Sören Siekmann
052 ···
Nr. anzeigenPreise & Kosten
Provision für Käufer
3,57 % inkl. MwSt.
Lage
Die Waldheide Straße 7 in Detmold liegt in einer ruhigen und familienfreundlichen Wohngegend, die von Einfamilienhäusern und viel Grün umgeben ist. Die Nachbarschaft bietet eine angenehme Atmosphäre und ist ideal für Familien, die eine ruhige Umgebung suchen, aber dennoch die Nähe zu städtischen Annehmlichkeiten...
Das Grundstück
Details
Objektbeschreibung
Geförderter Wohnungsbau mit attraktiver Rendite, ideal für Investoren!
Bereits komplett vorgeplant und berechnet.
Sichern Sie sich diesen Bauplatz mit bereits konzipierter Bauplanung inklusive Klärung von Fördermitteln und Rücksprache mit dem Bauamt.
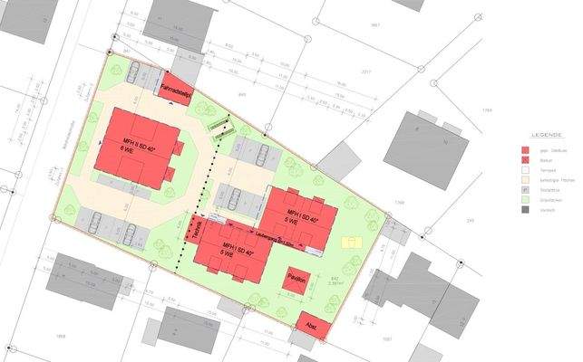
Auf dieser 2.379 m² großen Grundstücksfläche könnte bereits...
Ausstattung
* Grundstück mit Altbestand
* 2.2379 m² Grundstücksfläche
* vollständige Bauplanung vorhanden für
. im vorderen Grundstücksbereich 1 6-Parteien-Mehrfamilienhaus mit 11 Stellplätzen
. im hinteren Grundstücksbereich ein 10-Parteien-Mehrfamilienhaus über zwei Gebäudeteile á 5 Einheiten mit 7 Stellplätzen
...
Weitere Informationen
Sonstiges
Der hier veröffentlichte Konzeptplan sowie die zugrunde liegende Konzeptgestaltung und Berechnung sind urheberrechtlich durch den Architekten Herrn Dipl. Ing. Peter Rudi geschützt.
Die weitere Konzipierung und detaillierte Ausgestaltung wird ebenfalls durch ihn und die Planbau Rudi GmbH erfolgen.
Bitte...
Anbieter der Immobilie
Online-ID: 2pqeg54
Referenznummer: TMIP.K1018-4
Finde Angebote wie dieses
Hier geht es zu unserem Impressum, den Allgemeinen Geschäftsbedingungen, den Hinweisen zum Datenschutz und nutzungsbasierter Online-Werbung.