
Dawonia Management GmbH
Maxi Frank
Kontaktiere den Anbieter schriftlich, es ist keine Telefonnummer hinterlegt.
Preise & Kosten
nicht in Warmmiete enthalten
Kaution
2.769,30
Warum sehe ich diese Anzeige? – Du siehst diese Anzeige basierend auf Ihrer Navigation auf unserer Website und den Suchkriterien, die du verwendet hast.
Lage
Die Wohnanlage befindet sich im Stadtteil Am Anger/Bruck. Die Entfernung zur Innenstadt beträgt weniger als 2 km. Das Objekt liegt verkehrsgünstig zur der Autobahnauffahrt A73. Nur 600 m von der Anlage entfernt ist eine Bushaltestelle. In direkter Umgebung befinden sich Geschäfte des täglichen Bedarfs, Ärzte, Kindergärten und...
Die Wohnung
Wohnungslage
15. Geschoss
Bezug
sofort
Wohnanlage
Energie & Heizung
Warum sehe ich diese Anzeige? – Du siehst diese Anzeige basierend auf Ihrer Navigation auf unserer Website und den Suchkriterien, die du verwendet hast.
Energieausweistyp
Bedarfsausweis
Gebäudetyp
Wohngebäude
Baujahr laut Energieausweis
2023
Wesentliche Energieträger
Fernwärme
Effizienzklasse
B
Endenergiebedarf
56,30 kWh/(m²·a)
Weitere Energiedaten
Energieträger
Fernwärme
Heizungsart
Zentralheizung
Details
Objektbeschreibung
Objektreferenz: 1043/2542/87
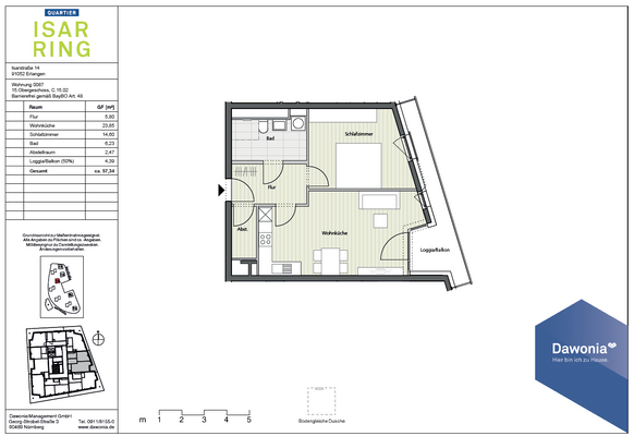
Die helle 2-Zimmer-Wohnung befindet sich im 15. Obergeschoss eines Neubaus (Fertigstellung Juli 2024) in einer gepflegten Wohnanlage.
Auf Wunsch kann ein Stellplatz in der Tiefgarage unter dem Haus für zusätzlich 65 € mtl. angemietet werden.
Ausstattung
Die Wohnung ist ausgestattet mit:
- Balkon
- Parkettboden
- Innenliegendem Bad mit ebenerdiger Dusche
- Waschmaschinen-Anschluss im Badezimmer
- Einbauküche mit Geschirrspüler, Backofen/Ceran-Kochfeld, Kühl-Gefrier-Kombination und Dunstabzugshaube
- Video-Gegensprechanlage
- Fußbodenheizung
-...
Preisinformation
1 Tiefgaragenstellplatz, Miete: 65,00 EUR
Weitere Informationen
Sonstiges
Unsere Mietverträge enthalten eine jährliche Erhöhung der Kaltmiete von 2 %.
HINWEIS ZUR BEWERBUNG:
Um Ihnen den bestmöglichen Service zu bieten, können Sie sich bei uns digital bewerben. Kopieren Sie den untenstehenden Link in die Adresszeile Ihres Browsers und folgen Sie der Anleitung.
...
Dokumente
Anbieter der Immobilie
Maxi Frank
Dein Ansprechpartner
Kontaktiere den Anbieter schriftlich, es ist keine Telefonnummer hinterlegt.
Online-ID: 2pqbq52
Referenznummer: 1043/2542/87-DUxTVF
Finde Angebote wie dieses
Hier geht es zu unserem Impressum, den Allgemeinen Geschäftsbedingungen, den Hinweisen zum Datenschutz und nutzungsbasierter Online-Werbung.