
ohne-makler.net - Immobilien selbst vermarkten
Privat von Marcel Pfeiffer
Kontaktiere den Anbieter schriftlich, es ist keine Telefonnummer hinterlegt.
Preise & Kosten
Provision für Käufer
provisionsfrei
Lage
Grün, grüner, Langenhorn - Familienparadies in Stadtrandlage
Was dieses Zuhause im Hamburger Norden so besonders macht, ist die gewachsene, ausgesprochen freundliche Nachbarschaft. Hier wohnen viele Familien, es gibt eine gute Mischung aus Jung und Alt, ein Umfeld, in dem man sich begegnet und schnell ins Gespräch...
Das Haus
Kategorie
Doppelhaushälfte
Baujahr
2013
Bezug
nach Absprache
Energie & Heizung
Warum sehe ich diese Anzeige? – Du siehst diese Anzeige basierend auf Ihrer Navigation auf unserer Website und den Suchkriterien, die du verwendet hast.
Energieausweistyp
Verbrauchsausweis
Gebäudetyp
Wohngebäude
Effizienzklasse
B
Endenergieverbrauch
65,00 kWh/(m²·a)
Weitere Energiedaten
Energieträger
Fernwärme
Heizungsart
Zentralheizung
Details
Objektbeschreibung
Stellen Sie sich vor, Sie kommen nach Hause.
Schon beim Hereinfahren ins Quartier im Langenhorner Ox-Park spüren Sie diese besondere Stimmung, geprägt durch die familienfreundliche, harmonische Nachbarschaft sowie durch das Privileg, in der Umgebung der denkmalgeschützten Anlage zu leben. Der Charme alter Gebäude und...
Ausstattung
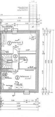
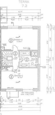
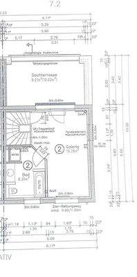
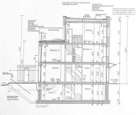
Terrasse, Garten, Keller, Dachterrasse, Vollbad, Einbauküche, Gäste-WC, Laminat, Fliesen
Bemerkungen:
Bauweise & Energie
. Baujahr 2013 in massiver Bauweise
. KfW-Effizienzhaus 70
. Energieeffizienzklasse B
. Zentrales Blockheizkraftwerk im Quartier für eine effiziente und nachhaltige...
Preisinformation
1 Carportplatz
Weitere Informationen
Sonstiges
Heizungsart: Zentralheizung
Energieträger: Fernwärme
Vielleicht ist ja genau hier der Ort, wo Ihr neues Kapitel beginnt.
Wenn die Immobilie Ihr Interesse geweckt hat, freuen wir uns darauf, Ihnen dieses Zuhause persönlich zu zeigen. Vereinbaren Sie gerne zeitnah einen...
Anbieter der Immobilie
ohne-makler.net - Immobilien selbst vermarkten
Humboldtstr. 25 A, 21509 Glinde
Privat von Marcel Pfeiffer
Dein Ansprechpartner
Kontaktiere den Anbieter schriftlich, es ist keine Telefonnummer hinterlegt.
Online-ID: 2pqam55
Referenznummer: 439472
Finde Angebote wie dieses
Hier geht es zu unserem Impressum, den Allgemeinen Geschäftsbedingungen, den Hinweisen zum Datenschutz und nutzungsbasierter Online-Werbung.