
Crozilla.com
PARENTIUM Real Estate
+38 ···
Nr. anzeigenPreise & Kosten
Provision für Käufer
Bitte beachte, das Angebot kann bei Vertragsabschluss die Zahlung einer Provision beinhalten. Weitere Informationen erhältst Du vom Anbieter.
Das Haus
Baujahr
2023
Details
Objektbeschreibung
Istrien, Region Porec
In der Nähe der Stadt Porec befindet sich diese imposante Luxusvilla mit einer Gesamtfläche von 330 m2 mit reichhaltigem Inhalt und wunderschönem Panoramablick.
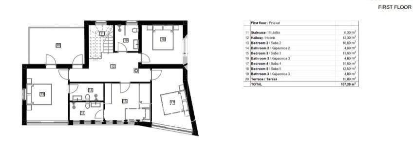
Die Villa ist in 3 Etagen aufgeteilt.
Im Untergeschoss befindet sich ein ausgestatteter Fitnessraum und eine Sauna mit...
Weitere Informationen
Stichworte
Anzahl der Schlafzimmer: 5, Anzahl der Badezimmer: 4, 1 Etagen
Anbieter der Immobilie
Crozilla.com
Nova cesta 60, 10000 ZAGREB
Online-ID: 2pqaa55
Referenznummer: 19632352_0
Finde Angebote wie dieses
Hier geht es zu unserem Impressum, den Allgemeinen Geschäftsbedingungen, den Hinweisen zum Datenschutz und nutzungsbasierter Online-Werbung.