
Beyer Immobilien GmbH
Herr Julian Schuster
004 ···
Nr. anzeigenPreise & Kosten
Provision für Käufer
provisionsfrei
Lage
In der Nähe befinden sich ein Kindergarten, eine Grundschule sowie das örtliche Schwimmbad. Zahlreiche Genuss- und Einkaufsmöglichkeiten liefern neben dem renommierten Weingut Faber eine Vielzahl von gutbürgerlichen, feinen Restaurants (z. B. Gasthaus zur Linde, Gasthaus Weinberg) sowie Supermärkten, die sich ebenfalls in der...
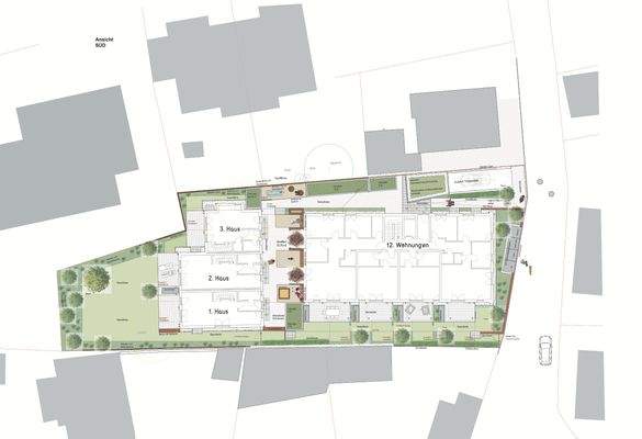
Die Wohnung
Wohnungslage
1. Geschoss
Bezug
sofort
Wohnanlage
Energie & Heizung
Warum sehe ich diese Anzeige? – Du siehst diese Anzeige basierend auf Ihrer Navigation auf unserer Website und den Suchkriterien, die du verwendet hast.
Energieausweistyp
Bedarfsausweis
Gebäudetyp
Wohngebäude
Baujahr laut Energieausweis
2022
Gültigkeit
bis 06.03.2032
Effizienzklasse
A+
Endenergiebedarf
19,60 kWh/(m²·a)
Weitere Energiedaten
Heizungsart
Fußbodenheizung, Zentralheizung
Details
Objektbeschreibung
Wohnen mit Blick auf die Weinreben, leben im historisch gewachsenen Ortskern von Freiburg St. Georgen, der in unmittelbarer Nähe zum Schönberg liegt. Der Stadtteil blickt auf eine lange Tradition des Weinbaus zurück. In diesem südwestlichen Vorposten der Schwarzwaldmetropole liegen die Weinhöfe in einem idyllischen...
Ausstattung
- Massivbauweise, hochwertige Fassade mit kunstvollem Kammputz
- Kunststofffenster mit Dreischeibenisolierverglasung
- Luftwärme-Heizung mit eXergiemaschine (KfW 55 Standard)
- edles Treppenhaus mit großzügiger Aufzugkabine
- Tiefgarage mit Steckdosen an jedem Parkplatz
- Außenanlage mit Naturstein &...
Weitere Informationen
Sonstiges
Kaufpreis 799.000,00 EUR
Inventar verhandlungsbasis
TG-Stellplatz 35.000,00...
Anbieter der Immobilie
Online-ID: 2pq7353
Referenznummer: 2504
Finde Angebote wie dieses
Hier geht es zu unserem Impressum, den Allgemeinen Geschäftsbedingungen, den Hinweisen zum Datenschutz und nutzungsbasierter Online-Werbung.