

Pfäfflin & Wild Immobilien GbR
Frau Clara Pfäfflin
076 ···
Nr. anzeigenPreise & Kosten
Provision für Käufer
2,38 % inkl. MwSt.
Lage
Das Zweifamilienhaus befindet sich in Grunern, einem idyllischen Stadtteil von Staufen im Breisgau. Grunern zeichnet sich durch seine ruhige Lage am Rande des Schwarzwalds aus und bietet seinen Bewohnern eine ausgezeichnete Lebensqualität. Die Umgebung ist geprägt von malerischen Landschaften, zahlreichen Wanderwegen und...
Das Haus
Kategorie
Mehrfamilienhaus
Baujahr
1966
Derzeitige Nutzung
vermietet
Energie & Heizung
Warum sehe ich diese Anzeige? – Du siehst diese Anzeige basierend auf Ihrer Navigation auf unserer Website und den Suchkriterien, die du verwendet hast.
Weitere Energiedaten
Energieträger
Öl
Heizungsart
offener Kamin
Details
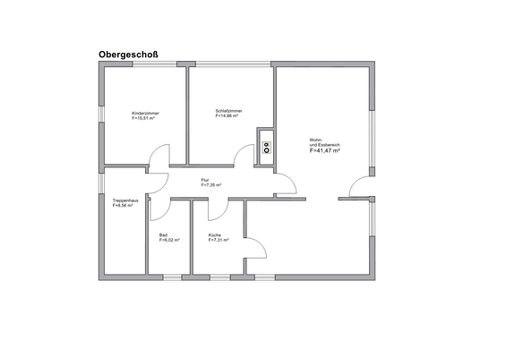
Objektbeschreibung
Das Zweifamilienhaus aus dem Jahr 1966 steht auf einem 726?m² großen Grundstück und bietet rund 200?m² Wohnfläche. Schon seit vielen Jahren wird es von zwei Parteien bewohnt und insgesamt sehr gepflegt behandelt. Einige Bereiche könnten inzwischen eine Modernisierung vertragen, doch der generelle Zustand ist solide und...
Ausstattung
Die Immobilie verfügt über einen Kamin. Die Ausstattung ist insgesamt als einfach einzustufen, und in einigen Bereichen besteht Renovierungsbedarf. Das Dach wurde im Jahr 2011 energetisch saniert, ebenso stammen die Öl-Heizung sowie der Fassadenanstrich aus dem Jahr 2011. Insgesamt bietet die Immobilie eine solide Grundlage...
Weitere Informationen
Stichworte
Sonstige Fläche: 15,00 m², Anzahl der Schlafzimmer: 4, Anzahl der Badezimmer: 2, Anzahl Terrassen: 1, Balkon-Terrassen-Fläche: 6,00 m², Kellerfläche: 100,00 m², 2 Etagen, modernisiert: 2011, modernisiert
Anbieter der Immobilie
Pfäfflin & Wild Immobilien GbR
Grünmatten 2A, 79219 Staufen im Breisgau

Online-ID: 2pq7258
Referenznummer: 59#uriR2F
Finde Angebote wie dieses
Hier geht es zu unserem Impressum, den Allgemeinen Geschäftsbedingungen, den Hinweisen zum Datenschutz und nutzungsbasierter Online-Werbung.